Chia sẻ thông tin | 16.10.25
Những ngôi nhà cấp 4 chữ L mái tôn ngày càng được ưa chuộng nhờ sự hài hòa giữa nét truyền thống và hiện đại, mang lại không gian sống tiện nghi, thoáng đãng. Loại hình kiến trúc này giúp tối ưu diện tích, tiết kiệm chi phí và rút ngắn thời gian xây dựng nhờ kết cấu đơn giản và vật liệu mái tôn nhẹ.
Nhà cấp 4 chữ L mái tôn là mẫu nhà được rất nhiều gia đình ưa chuộng ở nông thôn nhờ thiết kế tiện dụng, chi phí thấp và phù hợp với điều kiện khí hậu Việt Nam. Kiểu nhà này vừa đảm bảo công năng sinh hoạt, vừa dễ dàng mở rộng không gian xung quanh. Dưới đây là những đặc điểm nổi bật của kiểu nhà này:
Ưu điểm nổi bật:
Nhược điểm cần lưu ý:

Chi phí lắp đặt mái tôn tối ưu hơn mái ngói (Nguồn: Internet)
Việc thiết kế công năng cho nhà cấp 4 chữ L mái tôn rất linh hoạt và dễ dàng tùy biến. Nhờ vậy, gia chủ có thể thoải mái bố trí công năng phù hợp với số lượng thành viên và nhu cầu sử dụng thực tế. Dưới đây là 3 loại bố trí công năng phổ biến mà bạn có thể tham khảo:
Sơ đồ mặt bằng phổ biến:
Gợi ý bố trí công năng: Góc khuyết của chữ L có thể tận dụng linh hoạt để làm gara ô tô, bố trí hiên nhà hoặc thiết kế tiểu cảnh xanh với cây cỏ, chậu hoa, giúp tăng tính thẩm mỹ và tạo điểm nhấn cho ngôi nhà.

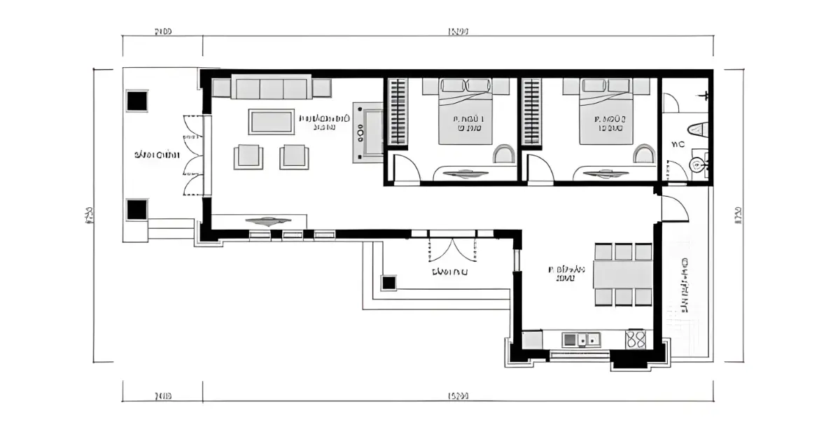
Bản vẽ mặt bằng công năng nhà cấp 4 mái tôn chữ L 2 phòng ngủ tiện nghi, hiện đại (Nguồn: Internet)

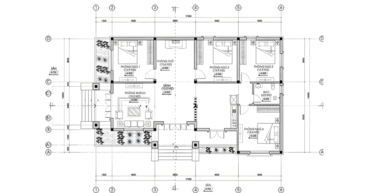
Bản vẽ chi tiết của mẫu nhà cấp 4 mái tôn chữ L với 3 phòng ngủ, 1 phòng khách, 1 phòng ăn (Nguồn: Internet)

Bản vẽ công năng nhà cấp 4 mái tôn chữ L 4 phòng ngủ dành cho gia đình nhiều thành viên (Nguồn: Internet)

Bản vẽ công năng nhà cấp 4 mái tôn chữ L có gara ô tô tiện lợi (Nguồn: Internet)
Đây là giải pháp “vàng” cho những gia đình cần thêm không gian sử dụng nhưng bị giới hạn về diện tích đất. Phần gác lửng được thiết kế khéo léo phía trên một khu vực chức năng (thường là phòng khách hoặc bếp), trở thành phòng ngủ phụ, phòng làm việc hay phòng thờ mà không làm thay đổi kết cấu chính của ngôi nhà. Sự kết hợp giữa hình khối chữ L và gác lửng giúp tối đa hóa công năng trên từng mét vuông một cách thông minh.

Ngôi nhà lắp đặt dòng tôn giả ngói đẹp và sang trọng

Gia chủ có thể lắp những ô cửa sổ nhôm kính nhỏ ở phần gác lửng để thông thoáng hơn (Nguồn: Internet)

Mặt cắt không gian bên trong một nhà cấp 4 chữ L mái tôn có gác lửng (Nguồn: Internet)
Mẫu nhà đặc biệt phù hợp với các gia đình nhỏ hoặc có từ 2 – 4 thành viên. Thiết kế chữ L giúp phân chia nơi sinh hoạt chung (phòng khách, bếp) và khu vực riêng tư (phòng ngủ) một cách rõ ràng. Các phòng ngủ thường được bố trí ở nhánh dài của chữ L, đảm bảo sự yên tĩnh. Trong khi đó, phòng khách và bếp có thể nằm ở nhánh còn lại, hướng ra khoảng sân chung, tạo cảm giác rộng rãi, thoải mái. Các mẫu cửa nhôm nhà cấp 4 hiện nay rất đa dạng, trong đó mẫu cửa nhôm 4 cánh là lựa chọn phổ biến, giúp ngôi nhà của bạn vừa hiện đại vừa phù hợp với tổng thể kiến trúc.

Căn nhà có 3 phòng ngủ và đầy đủ các khu vực sinh hoạt chung (Nguồn: Internet)

Mái tôn hoà hợp với kiến trúc của ngôi nhà khi nhìn từ bên ngoài (Nguồn: Internet)
Thiết kế nhà ở này phù hợp với những gia đình có quỹ đất rộng, yêu thích không gian xanh với phần góc vuông được tận dụng để làm sân vườn, tiểu cảnh, hồ cá koi hoặc nơi trồng rau. Khoảng sân vườn không chỉ tạo cảnh quan đẹp mắt mà còn mang đến không khí trong lành, giúp thành viên trong gia đình được thư giãn sau những giờ làm việc căng thẳng.

Thiết kế nhà phù hợp với những ô đất có diện tích rộng rãi (Nguồn: Internet)

Nhà ở thích hợp cho những gia đình có người già hoặc trẻ nhỏ cần khu vực sân vườn rộng để giải trí (Nguồn: Internet)

Tiểu cảnh biến không gian sống trở nên gần gũi hơn với thiên nhiên (Nguồn: Internet)

Công trình cần sự đầu tư tỉ mỉ về bối cảnh để có sự hài hoà và tránh rối mắt (Nguồn: Internet)

Mẫu nhà cấp 4 mái tôn chữ L kết hợp sân vườn đẹp (Nguồn: Internet)

Nhà cấp 4 mái tôn chữ L kết hợp sân vườn giúp ngôi nhà thoáng sáng hơn (Nguồn: Internet)
Đối với người sở hữu ô tô, việc tích hợp gara vào thiết kế là một lựa chọn thông minh. Gara thường được bố trí ở góc chữ L, có thể xây dựng riêng biệt hoặc lợp mái tôn nối liền với ngôi nhà. Vị trí này không chỉ tiện lợi cho việc di chuyển mà còn giúp tiết kiệm không gian, đảm bảo ô tô được bảo vệ khỏi nắng mưa. Gara cũng có thể kết hợp làm sân phơi hoặc kho chứa đồ, mang lại sự tiện ích tối đa cho gia chủ.

Tận dụng phần góc vuông chữ L để làm một gara ô tô lớn (Nguồn: Internet)

Thiết kế hài hoà của mẫu nhà cấp 4 chữ L mái tôn có gara ô tô (Nguồn: Internet)

Vị trí đặt phương tiện thuận lợi cho việc di chuyển (Nguồn: Internet)

Mẫu nhà cấp 4 chữ L mái tôn có gara ô tô khép kín tăng tính an toàn và riêng tư (Nguồn: Internet)

Khu vực gara được nối liền với ngôi nhà tạo sự hài hoà khi nhìn vào (Nguồn: Internet)
Mẫu nhà cấp 4 chữ L mái tôn kiểu biệt thự mang đến vẻ đẹp sang trọng và hiện đại, phù hợp với những gia chủ yêu thích không gian sống tiện nghi. Thiết kế chữ L kết hợp mái tôn dốc nhẹ giúp ngôi nhà thông thoáng, cân đối và đón sáng tốt. Kiến trúc có thể kết hợp sân vườn, hiên rộng và cửa nhôm kính lớn để tăng sự kết nối giữa trong – ngoài, tạo cảm giác nghỉ dưỡng ngay tại nhà.

Mẫu thiết kế nhà cấp 4 mái tôn chữ L kiểu biệt thự tiết kiệm chi phí (Nguồn: Internet)

Mẫu nhà cấp 4 chữ L mái tôn kiểu biệt thự sang trọng (Nguồn: Internet)

Mẫu nhà cấp 4 chữ L mái tôn kiểu biệt thự kết hợp với bể bơi hiện đại (Nguồn: Internet)

Mẫu nhà cấp 4 mái tôn kiểu biệt thự mang lại vẻ đẹp sang trọng, bề thế (Nguồn: Internet)

Mẫu biệt thự cấp 4 chữ L mái tôn kết hợp mái hiên che ô tô tiện lợi (Nguồn: Internet)
Nhà cấp 4 chữ L mái tôn giả ngói là lựa chọn lý tưởng cho những ai muốn sở hữu diện mạo sang trọng của mái ngói nhưng vẫn tiết kiệm chi phí xây dựng. Loại mái này có độ bền cao, chống nóng tốt và ít bám bụi, phù hợp khí hậu Việt Nam. Kiểu dáng mái giả ngói kết hợp cùng hình khối chữ L giúp ngôi nhà vừa mang nét truyền thống, vừa hiện đại và tinh tế.

Nhà cấp 4 chữ L mái tôn giả ngói là lựa chọn lý tưởng để tiết kiệm chi phí xây dựng (Nguồn: Internet)

Mẫu nhà cấp 4 mái tôn giả ngói chữ L đẹp (Nguồn: Internet)

Mẫu nhà cấp 4 mái tôn giả ngói chữ L hiện đại, tối ưu công năng (Nguồn: Internet)
1. Đơn giá xây dựng theo m²
2. Cách tính chi phí nhanh: Chi phí xây dựng không chỉ tính trên diện tích sàn mà bao gồm cả móng và mái.
Công thức ước tính: Chi phí = Đơn giá/m² × Diện tích sàn × 1.7 (Hệ số 1.7 là ước lượng cho cả móng và mái) |
Ví dụ cho nhà 100 m²
3 – Các chi phí khác cần nhớ
Khi lập dự toán, ngoài chi phí xây thô và hoàn thiện, gia chủ cũng nên tìm hiểu trước giá cửa kính cường lực khung nhôm, giá cửa nhôm lùa 1 cánh, giá cửa nhôm phòng ngủ và đơn giá cửa nhôm kính để có kế hoạch tài chính chi tiết, tránh phát sinh.
>>> TOSTEM hiện cung cấp giải pháp cửa nhôm chất lượng cao với quy trình sản xuất đồng bộ từ nhà máy, đảm bảo cho sự an toàn và bền bỉ lâu dài. Với khung nhôm thanh mảnh, tối đa diện tích kính, cửa TOSTEM giúp không gian nhà cấp 4 chữ L mái tôn luôn tràn ngập ánh sáng tự nhiên và gió mát, tạo cảm giác rộng rãi và thoải mái cho ngôi nhà.

Sản phẩm cửa nhôm kính TOSTEM góp phần nâng tầm kiến trúc nhà cấp 4 chữ L mái tôn
Để có một ngôi nhà cấp 4 chữ L mái tôn đẹp, bền và công năng tối ưu, bạn cần lưu ý đến một số yếu tố quan trọng trong quá trình thiết kế và thi công:

Cân nhắc lựa chọn nhà thầu để đảm bảo chất lượng và thời gian xây dựng (Nguồn: Internet)
TOSTEM là một thương hiệu thuộc tập đoàn LIXIL – Nhật Bản, là nhà cung cấp cửa nhôm cao cấp hàng đầu thế giới. Với hơn 100 năm kinh nghiệm, TOSTEM không ngừng cải tiến công nghệ, mang đến sản phẩm chất lượng, đáp ứng các tiêu chuẩn khắt khe nhất. Các giải pháp cửa nhôm của TOSTEM chính là lựa chọn hoàn hảo cho mẫu nhà cấp 4 chữ L mái tôn.
Những ưu điểm nổi bật của cửa nhôm TOSTEM:

Cửa nhôm TOSTEM nổi bật với vẻ đẹp hiện đại và để bền chuẩn Nhật Bản
Nhà cấp 4 chữ L mái tôn là lựa chọn kiến trúc thông minh, kết hợp giữa yếu tố thẩm mỹ, công năng sử dụng và tính kinh tế. Với nhiều ưu điểm nổi bật về chi phí, thời gian thi công và khả năng tối ưu hóa không gian, loại hình nhà ở này không chỉ đáp ứng nhu cầu của các gia đình có tài chính vừa phải, mang đến một không gian sống hiện đại, tiện nghi và thoáng đãng.
Để hiện thực hóa ngôi nhà mơ ước của bạn với những giải pháp cửa nhôm cao cấp, bền bỉ, hãy lựa chọn TOSTEM. Chúng tôi sẵn sàng tư vấn và cung cấp những sản phẩm chất lượng hàng đầu, phù hợp với phong cách và yêu cầu của riêng bạn. Gọi ngay hotline để nhận sự hỗ trợ tận tình và chuyên nghiệp từ đội ngũ chuyên gia của TOSTEM.
Thông tin liên hệ
|
News
News
Tin liên quan