Chia sẻ thông tin  |  08.09.25

9 mẫu bản vẽ nhà 2 tầng mái Nhật tối ưu công năng và thẩm mỹ

4.5/5 - (2 bình chọn)

Bản vẽ nhà 2 tầng mái Nhật là bộ hồ sơ kỹ thuật thể hiện đầy đủ chi tiết kiến trúc của một ngôi nhà mái Nhật với thiết kế 2 tầng, từ chi tiết mặt đứng, mặt cắt và các thông số kỹ thuật, giúp chủ đầu tư hình dung rõ ràng về ngôi nhà và hỗ trợ quá trình thi công. Trong bài viết dưới đây, chúng tôi sẽ cập nhật đến bạn 9 mẫu bản vẽ nhà 2 tầng mái Nhật thẩm mỹ!

1. Đặc điểm nổi bật của nhà 2 tầng mái Nhật

Nhà 2 tầng mái Nhật là sự lựa chọn được yêu thích của nhiều gia chủ bởi vẻ ngoài bắt mắt và nhiều ưu điểm vượt trội về mặt kỹ thuật, công năng sử dụng. Dưới đây là những đặc điểm nổi bật của nhà 2 tầng mái Nhật:

  • Kiến trúc đơn giản, thanh thoát: Lấy cảm hứng từ phong cách Nhật Bản, kiến trúc nhà mái Nhật mang phong cách tối giản nhưng vẫn thể hiện sự tinh tế, chú trọng vào các đường nét thanh lịch. Để hoàn thiện vẻ đẹp này, việc lựa chọn mẫu cửa đại nhôm kính đẹp cho cửa chính sẽ tạo nên điểm nhấn sang trọng và ấn tượng ngay từ cái nhìn đầu tiên.
  • Mái dốc nhẹ, đua rộng: Giúp che mưa nắng hiệu quả, tạo bóng mát cho ngôi nhà, tối ưu khả năng thoát nước và chống chịu tốt với tác động thời tiết.
  • Phù hợp với khí hậu Việt Nam: Nhờ vào khả năng thoát nước và chống nắng tốt, đặc biệt phù hợp với khí hậu nhiệt đới gió mùa của Việt Nam, giúp tiết kiệm năng lượng và làm mát không gian.
  • Tối ưu không gian sống: Với bố trí 2 tầng công năng hợp lý, đáp ứng nhu cầu sinh hoạt cho gia đình 4-7 người.

bản vẽ nhà mái nhật 2 tầng có vẻ ngoài tối giản nhưng vẫn đảm bảo sang trọng

Mẫu nhà 2 tầng mái Nhật có vẻ ngoài tối giản nhưng vẫn đảm bảo sang trọng, thanh lịch (Nguồn ảnh: Internet)

2. 3 mẫu bản vẽ nhà 2 tầng mái Nhật theo phong cách

2.1. Mẫu bản vẽ nhà mái Nhật phong cách truyền thống

Bản vẽ nhà 2 tầng mái Nhật theo phong cách truyền thống tập trung vào sự tối giản, hài hòa và tối ưu hóa công năng. Ưu tiên các loại vật liệu truyền thống như gỗ, tre nứa để tạo cảm giác ấm cúng. Các phòng chức năng liên thông nhau, tạo cảm giác rộng rãi, thoáng đãng và kết hợp cùng loại cửa kính giúp tối ưu hóa tầm nhìn.

bản vẽ nhà mái nhật 2 tầng phong cách truyền thống tầng trệt

Mẫu bản vẽ nhà mái Nhật phong cách truyền thống tầng trệt (Nguồn ảnh: Internet)

bản vẽ nhà mái nhật 2 tầng phong cách truyền thống tầng lầu

Mẫu bản vẽ nhà mái Nhật phong cách truyền thống tầng lầu (Nguồn ảnh: Internet)

2.2. Mẫu bản vẽ nhà mái Nhật phong cách hiện đại

Bản vẽ nhà mái Nhật phong cách hiện đại là sự kết hợp hoàn hảo giữa mái Nhật dốc nhẹ, tạo vẻ đẹp hài hòa và kết hợp với cá hình khối đơn giản, đường nét khỏe khoắn, vuông vức. Mẫu nhà này thường sử dụng các loại cửa nhôm kính giúp tạo không gian mở, kết nối liền mạch trong và ngoài cửa. Khi tìm hiểu các loại cửa nhôm kính, bạn sẽ thấy sự đa dạng từ cửa đi mở quay, cửa sổ cố định đến cửa trượt, mỗi loại phù hợp với từng không gian và công năng khác nhau trong ngôi nhà.

bản vẽ nhà 2 tầng mái nhật phong cách hiện đại tầng trệt

Mẫu bản vẽ nhà mái Nhật phong cách hiện đại tầng trệt (Nguồn ảnh: Internet)

bản vẽ nhà 2 tầng mái nhật phong cách hiện đại tầng lầu

Mẫu bản vẽ nhà mái Nhật phong cách hiện đại tầng lầu (Nguồn ảnh: Internet)

2.3. Mẫu bản vẽ nhà mái Nhật phong cách tối giản

Mẫu bản vẽ nhà mái Nhật 2 tầng theo phong cách tối giản là sự kết hợp giữa các đường nét thanh thoát, mái nhà dốc nhẹ và sử dụng màu sắc trung tính. Mẫu nhà này thường tập trung tối đa hóa công năng trên từng chi tiết, hạn chế đồ đạc quá nhiều. Kết hợp cùng thiết kế mở, tận dụng cửa sổ lớn, cửa kính để đón ánh sáng tự nhiên vào không gian bên trong.

bản vẽ nhà 2 tầng mái nhật phong cách tối giản

Mẫu bản vẽ nhà mái Nhật phong cách tối giản (Nguồn ảnh: Internet)

3. 4 mẫu bản vẽ nhà 2 tầng mái Nhật theo số phòng ngủ

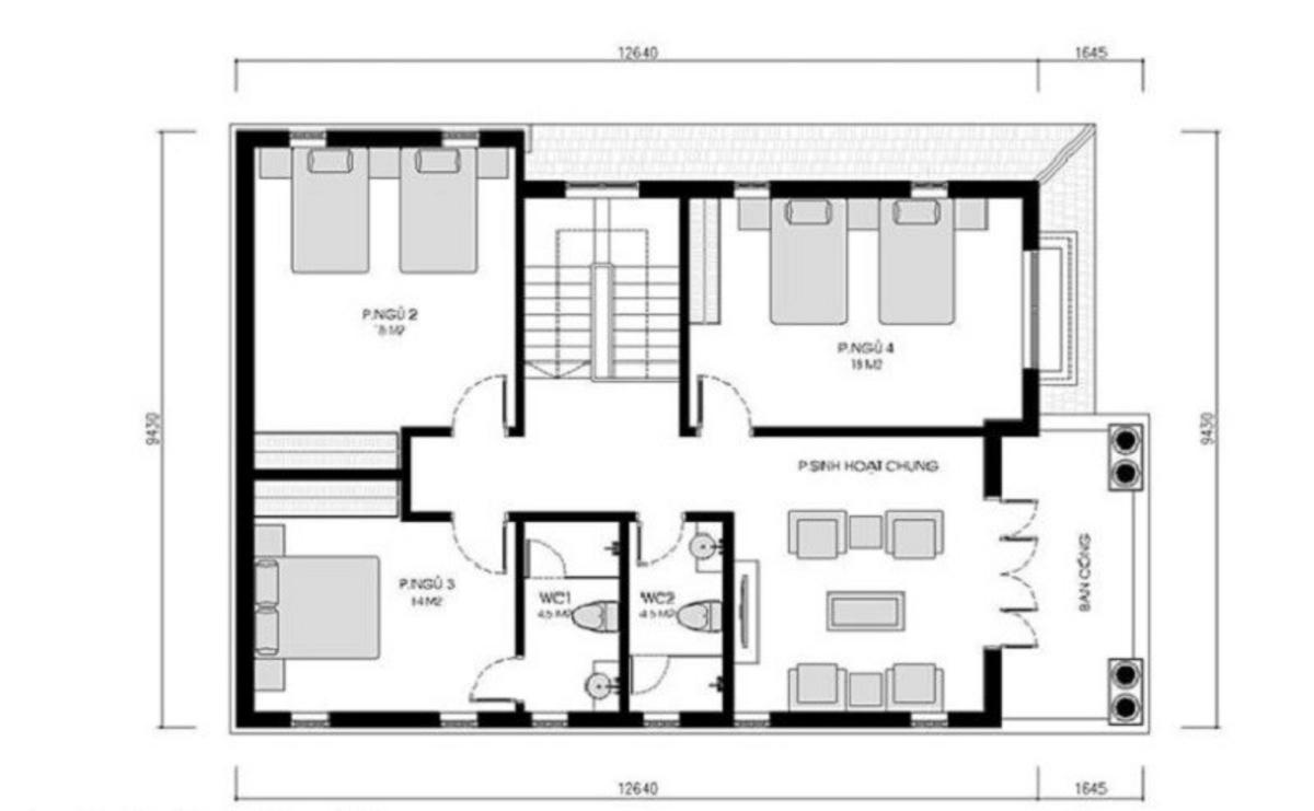
3.1. Mẫu bản vẽ nhà 2 tầng mái Nhật 2 phòng ngủ

Mẫu bản vẽ nhà 2 tầng mái Nhật 2 phòng ngủ sở hữu thiết kế mái Nhật đặc trưng bởi độ dốc nhẹ, tạo cảm giác thanh thoát cho tổng thể kiến trúc. Kết hợp cùng 2 phòng ngủ phù hợp cho gia đình nhỏ hoặc ít thành viên. Phần không gian sinh hoạt chung được bố trí khoa học, bao gồm phòng khách, phòng thờ, phòng bếp,…

Mẫu bản vẽ nhà 2 tầng mái Nhật 2 phòng ngủ

Mẫu bản vẽ nhà 2 tầng mái Nhật 2 phòng ngủ (Nguồn ảnh: Internet)

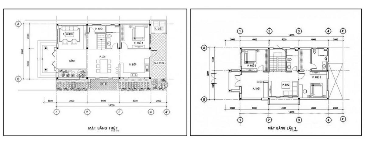
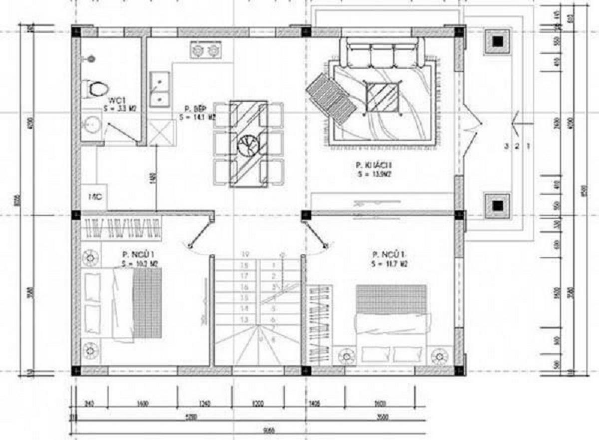
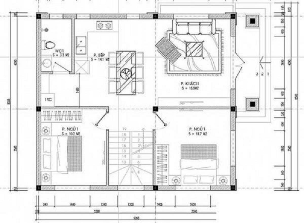
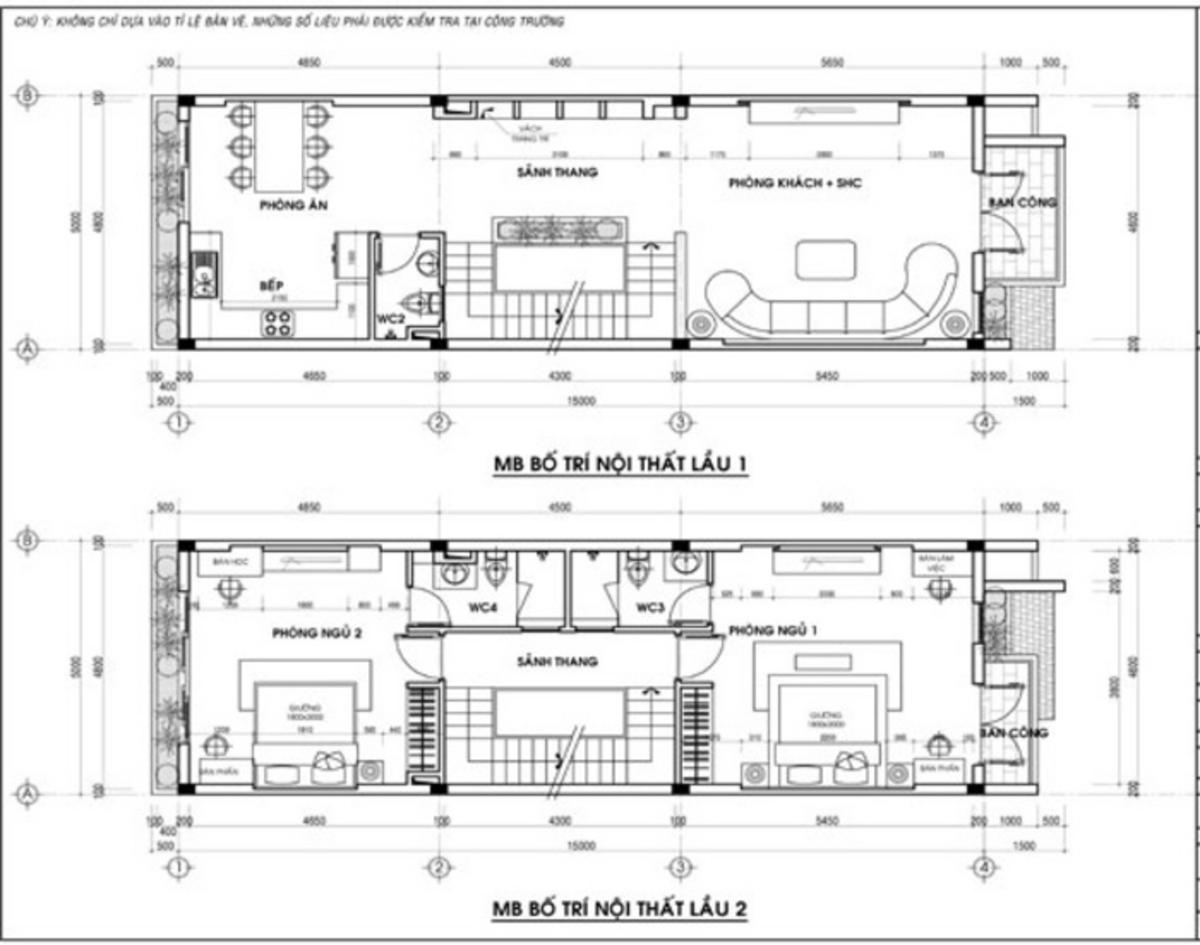
3.2. Mẫu bản vẽ nhà 2 tầng mái Nhật 3 phòng ngủ

Mẫu bản vẽ này phù hợp với gia đình có con nhỏ hoặc từ 4-5 thành viên. 3 phòng ngủ đảm bảo đủ mang lại sự riêng tư, thoải mái cho các thành viên nghỉ ngơi và làm việc. Kết hợp cùng phong cách mái Nhật trang nhã, kiến trúc hiện đại đảm bảo tính thẩm mỹ cao. 

Mẫu bản vẽ nhà 2 tầng mái Nhật 3 phòng ngủ tầng 1

Mẫu bản vẽ nhà 2 tầng mái Nhật 3 phòng ngủ tầng 1 (Nguồn ảnh: Internet)

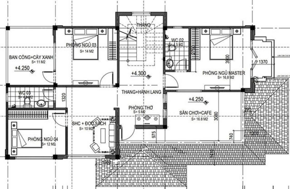
Mẫu bản vẽ nhà 2 tầng mái Nhật 3 phòng ngủ tầng 2

Mẫu bản vẽ nhà 2 tầng mái Nhật 3 phòng ngủ tầng 2 (Nguồn ảnh: Internet)

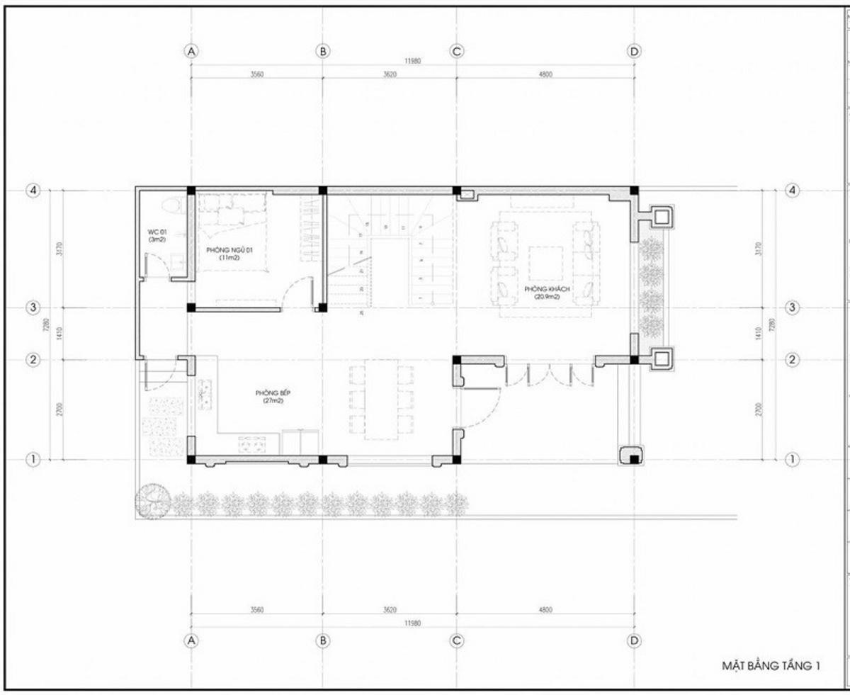
3.3. Mẫu bản vẽ nhà 2 tầng mái Nhật 4 phòng ngủ

Thiết kế 4 phòng ngủ phù hợp với các gia đình đông thành viên, đa thế hệ, đảm bảo có đủ không gian riêng tư cho mỗi người. Mẫu bản vẽ này thường tập trung tối đa hóa công năng, đảm bảo số lượng phòng ngủ lớn nhưng vẫn đầy đủ tiện nghi cần thiết. Nội thất thiết kế thường mang phong cách tối giản, ưu tiên vào sự tiện nghi và kết nối giữa các khu vực.

Mẫu bản vẽ nhà 2 tầng mái Nhật 4 phòng ngủ tầng 1

Mẫu bản vẽ nhà 2 tầng mái Nhật 4 phòng ngủ tầng 1 (Nguồn ảnh: Internet)

Mẫu bản vẽ nhà 2 tầng mái Nhật 4 phòng ngủ tầng 2

Mẫu bản vẽ nhà 2 tầng mái Nhật 4 phòng ngủ tầng 2 (Nguồn ảnh: Internet)

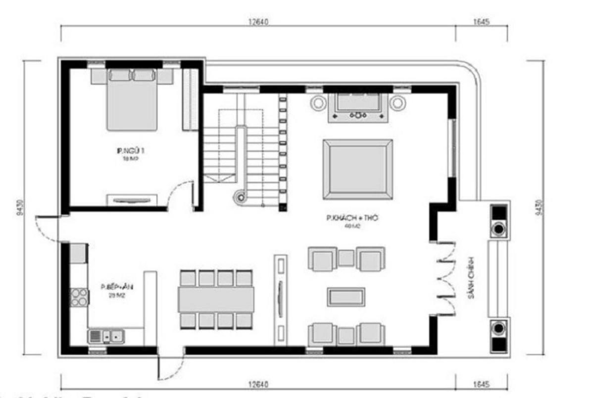
3.4. Mẫu bản vẽ nhà 2 tầng mái Nhật 5 phòng ngủ trở lên

Mẫu bản vẽ nhà 2 tầng mái Nhật 5 phòng ngủ trở lên đáp ứng nhu cầu sử dụng cho gia đình đông thành viên, đảm bảo mang lại sự tiện nghi và thoải mái tối đa cho từng người. Mẫu bản vẽ này có thể linh hoạt kết hợp với nhiều phong cách thiết kế từ cổ điển đến hiện đại. Thông thường, với số lượng phòng ngủ lớn, gia chủ thường ưu tiên sử dụng nhiều cửa sổ nhôm kính, giúp đón sáng tốt và tạo không gian mở, liên kết giữa các khu vực trong nhà.

Mẫu bản vẽ nhà 2 tầng mái Nhật 5 phòng ngủ tầng 1

Mẫu bản vẽ nhà 2 tầng mái Nhật 5 phòng ngủ tầng 1 (Nguồn ảnh: Internet)

Mẫu bản vẽ nhà 2 tầng mái Nhật 5 phòng ngủ tầng 2

Mẫu bản vẽ nhà 2 tầng mái Nhật 5 phòng ngủ tầng 2 (Nguồn ảnh: Internet)

4. 2 mẫu bản vẽ nhà 2 tầng mái Nhật theo công năng

4.1. Mẫu bản vẽ nhà 2 tầng mái Nhật có gara ô tô

Mẫu bản vẽ nhà 2 tầng mái Nhật có gara ô tô tập trung vào sự tiện nghi và tối đa hóa công năng, phong cách thiết kế hiện đại. Nổi bật với mái Nhật nghiêng đơn giản, tạo cảm giác thoáng đãng. Gara thường đặt tại tầng trệt, bên hông nhà hoặc tận dụng các góc chữ L. Để ngăn cách khu vực gara với không gian sinh hoạt mà vẫn giữ được sự thông thoáng cần thiết, cửa nhôm đẩy ngang là một giải pháp thiết thực và tiết kiệm diện tích hiệu quả.

Bản vẽ nhà 2 tầng mái Nhật có gara ô tô tầng trệt

Bản vẽ nhà 2 tầng mái Nhật có gara ô tô tầng trệt (Nguồn ảnh: Internet)

Bản vẽ nhà 2 tầng mái Nhật có gara ô tô tầng lầu

Bản vẽ nhà 2 tầng mái Nhật có gara ô tô tầng lầu (Nguồn ảnh: Internet)

4.2. Mẫu bản vẽ nhà 2 tầng mái Nhật sân vườn

Phong cách nhà 2 tầng mái Nhật kết hợp sân vườn mang đến một không gian sống xanh, gần gũi với thiên nhiên. Bản vẽ tập trung vào sự cân đối, hài hòa với thiết kế mái Nhật dốc nhẹ, sân vườn được bố trí khoa học xung quanh nhà hoặc tại một phần trong nhà, tạo cảm giác thư giãn, tiện nghi cho mọi thành viên trong gia đình.

bản vẽ nhà mái nhật 2 tầng có sân vườn

Bản vẽ thiết kế nhà 2 tầng mái Nhật có sân vườn (Nguồn ảnh: Internet)

5. Trong bản vẽ nhà 2 tầng mái Nhật chi tiết gồm những gì?

5.1. Các yếu tố chung trong bản vẽ

Mỗi bản vẽ nhà 2 tầng mái Nhật đều bắt buộc phải có các thông tin chung theo quy định của ngành xây dựng, đảm bảo tính chính xác và thống nhất trong quá trình thực hiện, thi công dự án:

  • Khung tên (Title Block): Chứa đầy đủ các thông tin cơ bản về dự án như tên dự án, hạng mục, số bản vẽ, tỷ lệ, đơn vị thiết kế, người vẽ, ngày tháng.
  • Ký hiệu và chú giải: Bao gồm các ký hiệu đồ họa để biểu thị vật liệu, thiết bị, quy ước cùng với các chú giải chi tiết về ký hiệu đó.
  • Bảng thống kê vật liệu và phụ kiện: Bao gồm cửa, lan can, thiết bị điện – nước, chi tiết hoàn thiện.
  • Ghi chú kỹ thuật: Các ghi chú này dùng để làm rõ các yêu cầu đặc biệt của dự án, ví dụ như chống thấm, chống ẩm, an toàn, hướng dẫn thi công.

Bản vẽ kỹ thuật thể hiện các ký hiệu và chú giải chi tiết

Bản vẽ kỹ thuật thể hiện các ký hiệu và chú giải chi tiết (Nguồn ảnh: Internet)

5.2. Các mặt trong bản vẽ nhà 2 tầng mái Nhật

Một bản vẽ hoàn chỉnh cần thể hiện đầy đủ thông tin chi tiết về ngôi nhà, bao gồm các mặt quan trọng, cung cấp góc nhìn và thông tin riêng biệt cho chủ đầu tư:

  • Mặt bằng tầng 1: Bao gồm phòng khách, bếp, WC, phòng ngủ, sân vườn, gara (nếu có), lối đi.
  • Mặt bằng tầng 2: Bao gồm phòng ngủ, WC, phòng thờ, ban công, lối thông tầng.
  • Mặt bằng mái: Thể hiện chi tiết kết cấu mái, độ dốc, kèo, rui mè, diềm mái, hướng thoát nước.
  • Mặt đứng: Thể hiện cửa chính, cửa sổ, ban công, sân thượng, màu sắc và chi tiết trang trí mặt tiền của dự án.
  • Mặt cắt công trình: Móng, tường, độ dày sàn, trần, cầu thang, chiều cao các tầng, kết cấu mái.
  • Chi tiết kỹ thuật và hoàn thiện: Vật liệu hoàn thiện, cửa, lan can, hệ thống điện – nước, chiếu sáng, thông gió, phụ kiện.

Mặt bằng tầng trệt trong thiết kế bản vẽ nhà 2 tầng mái Nhật

Mặt bằng tầng trệt trong thiết kế bản vẽ nhà 2 tầng mái Nhật (Nguồn ảnh: Internet)

5.3. Chi tiết kỹ thuật & hoàn thiện

Mỗi hạng mục trong bản vẽ cần được mô tả cụ thể, chính xác, bao gồm: Móng, tường, sàn, trần, mái, cầu thang, lan can, cửa, hệ thống điện – nước, vật liệu hoàn thiện, phụ kiện, ghi chú phong thủy & thi công.

6. Hướng dẫn cách thiết kế và đọc bản vẽ nhà 2 tầng mái Nhật

6.1. Các bước thiết kế bản vẽ nhà 2 tầng mái Nhật

Bước 1: Khảo sát hiện trạng

  • Bao gồm việc đo đạc diện tích đất, xác định ranh giới đảm bảo đúng theo pháp lý.
  • Tiến hành khảo sát địa chất để xác định sức chịu tải của nền đất để lựa chọn phương án xây dựng phù hợp.
  • Chủ đầu tư cần khảo sát hạ tầng, bao gồm hệ thống cấp thoát nước, điện lực, viễn thông và giao thông để đảm bảo tối ưu hóa bản vẽ.
  • Hướng nhà cũng cần được xem xét dựa vào yếu tố phong thủy, khí hậu thực tế và hướng nắng gió để chọn hướng nhà phù hợp, đón sáng tự nhiên và thông gió tốt.

Bước 2: Lên phương án bố trí mặt bằng

  • Phòng khách, bếp ăn thường bố trí tại tầng 1.
  • Phòng ngủ thường được bố trí tại tầng 2 để đảm bảo không gian riêng tư, yên tĩnh.
  • Vị trí cầu thang cần được thiết kế đảm bảo việc di chuyển giữa các tầng và an toàn khi sử dụng.
  • Chủ đầu tư có thể cân nhắc bố trí sân vườn, gara hài hòa để tạo không gian xanh và lưu trữ tiện nghi cho gia đình.

Bước 3: Thiết kế mặt đứng và mái Nhật

  • Chọn hình khối tổng thể và độ cao tầng tùy vào mong muốn gia chủ và mục đích sử dụng, đảm bảo sự thông thoáng và lấy sáng tự nhiên.
  • Chiều cao tầng 1 thường cao hơn tầng 2 để tạo cảm giác bề thế và đảm bảo an toàn xây dựng.
  • Sử dụng công thức để tính độ dốc mái phù hợp, mái thường có độ dốc từ 25-30 độ tùy vào thiết kế.
  • Xác định hướng thoát nước hiệu quả để tránh tình trạng ứ đọng nước, mái Nhật thường chọn hướng thoát nước từ đỉnh mái xuống các mép, theo hướng có độ dốc lớn nhất.
  • Vị trí cửa, ban công, ô thoáng cần bố trí đón sáng tự nhiên và luồng gió từ ngoài vào trong nhà. Tuy nhiên, cần tuân thủ quy định xây dựng và độ nhô ra của ban công.

Bước 4: Vẽ mặt cắt và chi tiết kỹ thuật

  • Cần thể hiện đầy đủ cấu trúc bên trong công trình và các chi tiết kỹ thuật về hệ thống móng, dầm, sàn, tường và trần nhà.
  • Đảm bảo các thành phần có độ bền ổn định và chịu tải tốt theo thời gian.
  • Chi tiết về cầu thang, lan can, lanh tô, bể phốt cần tuân thủ tiêu chuẩn về kỹ thuật và an toàn.
  • Các chi tiết về cửa, ô thoáng, kèo mái Nhật cần xem xét chọn kích thước và góc độ chuẩn xác, đảm bảo chất lượng thi công.

Bước 5: Hoàn thiện bản vẽ thi công

  • Cần phải bổ sung hệ thống điện, nước, điều hòa và chiếu sáng của công trình. Hệ thống điện cần thiết kế với các mạch riêng cho từng khu vực, đảm bảo độ an toàn và tiện nghi. Hệ thống cấp thoát nước theo quy chuẩn kỹ thuật, thoát nước hiệu quả cho công trình.
  • Hoàn thiện nội thất công trình, bao gồm tủ bếp, tủ quần áo và các hạng mục khác. Trong giai đoạn này, việc tìm hiểu cửa kính nhôm giá bao nhiêu là cần thiết để lập dự toán tổng thể chính xác cho toàn bộ công trình.

Bước 6: Kiểm tra và phê duyệt

  • Đảm bảo mọi yếu tố trong công trình được rà soát kỹ lưỡng, không chỉ đáp ứng tính khả thi trong thi công mà còn đảm bảo tính thẩm mỹ và phong thủy của công trình.
  • Sau khi hoàn tất kiểm tra và điều chỉnh, bản vẽ sẽ được phê duyệt chính thức để đưa vào thi công thực tế.

Thiết kế bản vẽ cần đảm bảo về thẩm mỹ, công năng và pháp lý

Thiết kế bản vẽ cần đảm bảo về thẩm mỹ, công năng và pháp lý của dự án (Nguồn ảnh: Internet)

6.2. Cách đọc bản vẽ nhà 2 tầng mái Nhật

Bước 1: Hiểu các yếu tố chung trong bản vẽ

  • Kiểm tra khung tên (Title Block) để biết các thông tin về dự án, hạng mục, tỷ lệ, đơn vị thiết kế, người vẽ, ngày tháng.
  • Xem các ký hiệu, chú giải và bảng thống kê vật liệu, phụ kiện, thiết bị để hiểu rõ các ngôn ngữ kỹ thuật có trong bảng vẽ.

Bước 2: Xem mặt bằng tổng thể và công năng các phòng

  • Cần nhận diện rõ vị trí các phòng như phòng khách, bếp, phòng ngủ, WC và khu vực sân vườn, cầu thang.
  • Kiểm tra diện tích từng phòng, lối đi, lưu thông giữa các khu vực và tối ưu công năng sử dụng xem có hợp lý hay không.
  • Xem xét mối liên hệ giữa tầng 1 và tầng 2 qua các chi tiết như cầu thang, hành lang, giếng trời, đảm bảo ràng lưu thông thuận tiện.

Bước 3: Kiểm tra mặt bằng mái

  • Xác định kết cấu mái Nhật, độ dốc, kèo rui mè, diềm mái có hợp lý hay không.
  • Kiểm tra hướng thoát nước, máng xối đảm bảo nước thoát tốt, tránh tình trạng ứ đọng nước.
  • Cần chú ý tầng mái trên và mái che tầng dưới.

Bước 4: Xem mặt đứng công trình

  • Kiểm tra vị trí cửa chính, cửa sổ, ban công, lan can, chi tiết trang trí mặt tiền để đánh giá tính cân đối, hài hòa của tổng thể công trình.
  • Chú ý đặc biệt các chi tiết như hoa văn, gạch ốp, màu sơn,.. để đảm bảo tính thẩm mỹ.
  • Bạn cũng cần nhận diện hình khối tổng thể, tỷ lệ chiều cao các tầng.

Bước 5: Xem mặt cắt công trình

  • Kiểm tra móng, tường, sàn, trần, chiều cao tầng, bậc thang trên bản vẽ mặt cắt công trình.
  • Kiểm tra liên kết kết cấu giữa tầng 1 và tầng 2, cùng với các chi tiết về kèo mái, dầm, cột chịu lực để đảm bảo độ an toàn.

Bước 6: Xem chi tiết kỹ thuật và hoàn thiện

  • Cần xem vật liệu hoàn thiện từ sàn, tường, cửa cho đến các thiết bị điện – nước, chiếu sáng, thông gió.
  • Chú ý ghi chú kỹ thuật quan trọng về tính chống thấm, chống ẩm, an toàn, phong thủy để đảm bảo chất lượng thi công của công trình.

Đọc bản vẽ nhà 2 tầng mái Nhật với 6 bước chi tiết

Đọc bản vẽ nhà 2 tầng mái Nhật với 6 bước chi tiết (Nguồn ảnh: Internet)

Giải pháp cửa nhôm cao cấp từ TOSTEM cho nhà mái Nhật 2 tầng

TOSTEM cung cấp đa dạng mẫu cửa nhôm kính chất lượng cao cấp cho nhà mái Nhật 2 tầng, giúp tô điểm vẻ đẹp vốn có của phong cách mái Nhật và mang lại nhiều ưu điểm vượt trội, bao gồm:

  • Thiết kế khung mảnh, kính lớn giúp mở rộng tầm nhìn, tăng ánh sáng, thông gió và cảm giác rộng rãi cho căn phòng.
  • Thiết kế hiện đại, linh hoạt cho các không gian phòng khách, ngủ, bếp.
  • Bền bỉ, an toàn, duy trì hiệu quả sử dụng diện tích lâu dài.
  • Sản xuất chuẩn Nhật Bản, đáp ứng các tiêu chuẩn quốc tế như JIS của Nhật Bản và ASTM của Mỹ.

Bài viết trên đã giải giới thiệu đến bạn các mẫu bản vẽ nhà 2 tầng mái Nhật và hướng dẫn cách thiết kế, đọc bản vẽ dễ hiểu. Để có một kế hoạch tài chính chi tiết và chủ động, việc tìm hiểu giá cửa nhôm kính cường lực phù hợp với thiết kế ngôi nhà là bước chuẩn bị quan trọng. Liên hệ với TOSTEM ngay hôm nay để nhận tư vấn chi tiết về thiết kế, gợi ý kích thước cửa cho nhà mái Nhật 2 tầng, hãy điền form tư vấn hoặc liên hệ qua hotline 0915 459 933 nhé!

Thông tin liên hệ

  • Hotline: 0915 459 933
  • Zalo (Official Account): TOSTEM Việt Nam
  • Hệ thống showroom:
  • Hà Nội: 46 Bích Câu, Phường Ô Chợ Dừa (Quận Đống Đa cũ).
  • Thành phố Hồ Chí Minh: 218 Bis Nam Kỳ Khởi Nghĩa, Phường Xuân Hòa (Quận 3 cũ)
 

0 0 đánh giá
Đánh giá bài viết
Theo dõi
Thông báo của
0 Góp ý
Cũ nhất
Mới nhất Được bỏ phiếu nhiều nhất
Phản hồi nội tuyến
Xem tất cả bình luận
Báo giá ngay Báo giá ngay

    Yêu cầu báo giá

    Để nhận tư vấn hoặc báo giá về sản phẩm cửa nhôm TOSTEM, vui lòng điền vào form dưới đây để liên hệ với chúng tôi

    captcha

    *Dữ liệu cá nhân của bạn sẽ được sử dụng để xử lý đơn đặt hàng của bạn và hỗ trợ trải nghiệm của bạn trên toàn bộ trang web này

    Khi quyết định tiếp tục và nhấn gửi, bạn đồng ý với các Thông báo điều khoản bảo vệ dữ liệu cá nhân và Điều khoản & điều kiện chung

    Trở lại trang đầu
    0915 459 933
    TOSTEM VIỆT NAM
    0
    Rất thích suy nghĩ của bạn, hãy bình luận.x