Chia sẻ thông tin | 16.09.25
Mẫu nhà cấp 4 4 phòng ngủ 120m² đang là lựa chọn hàng đầu trong xu hướng thiết kế nhà ở nông thôn hiện nay. Không chỉ kiến tạo không gian sống rộng rãi, thoải mái, giải pháp này còn giúp tối ưu chi phí hiệu quả cho gia đình nhiều thế hệ. Bài viết này, TOSTEM sẽ giới thiệu đến bạn 50+ mẫu nhà cấp 4 nông thôn 4 phòng ngủ 120m² đẹp, tiện nghi nhất 2025.
Mẫu nhà cấp 4 4 phòng ngủ 120m² là lựa chọn lý tưởng cho gia đình từ 4 – 6 thành viên, có nhiều thế hệ cùng sinh sống. Với diện tích hợp lý, ngôi nhà đảm bảo đầy đủ công năng và mang lại không gian sống tiện nghi, thoải mái.

Mẫu nhà cấp 4 4 phòng ngủ 120m² đang dẫn đầu xu hướng nhà ở nông thôn hiện nay (Nguồn ảnh: Internet)

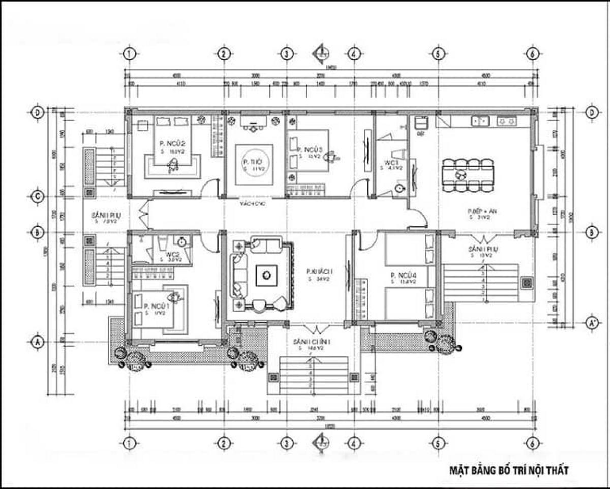
Bản vẽ nhà cấp 4 4 phòng ngủ 120m² rộng rãi, tiện nghi cho gia đình nhiều thế hệ (Nguồn ảnh: Internet)
Việc bố trí công năng hợp lý đóng vai trò quan trọng giúp tối ưu diện tích 120 sử dụng và mang lại sự tiện nghi. Dưới đây là gợi ý chi tiết để tối ưu hoá diện tích 120m² cho một gia đình nhiều thế hệ:

Nhà cấp 4 120m² 4 phòng ngủ kết hợp với sân vườn mang đến không gian sống trong lành. (Nguồn ảnh: Internet)

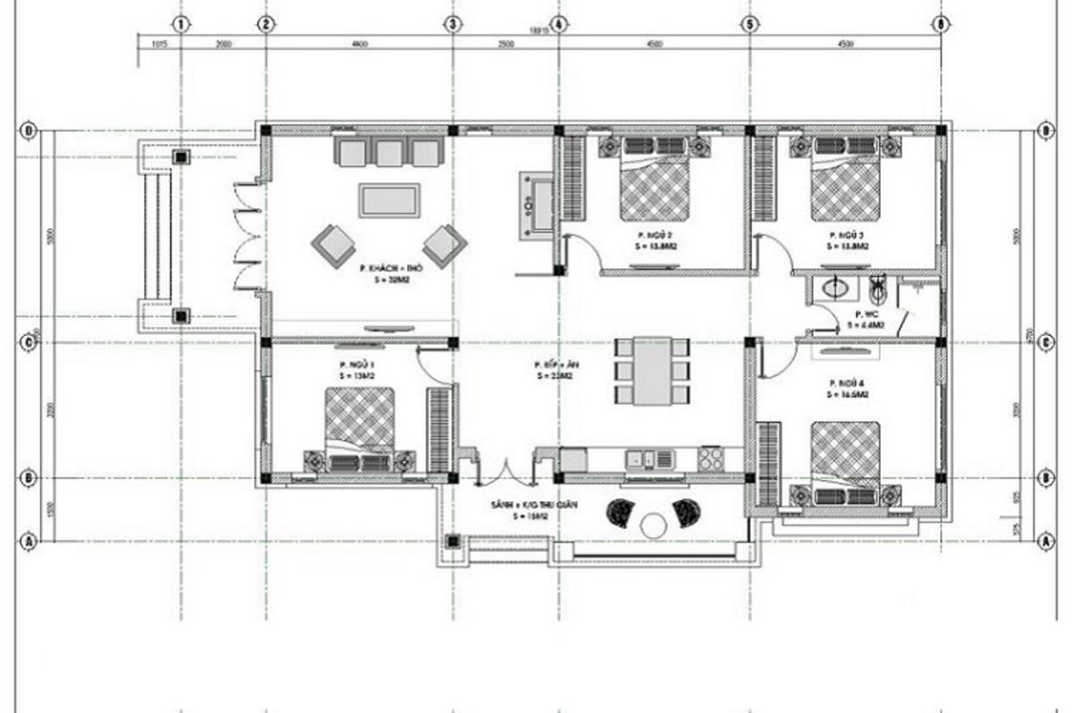
Bản vẽ nhà cấp 4 nông thôn 4 phòng ngủ 120m² chữ L được bố trí khoa học
(Nguồn ảnh: Internet)

Các khu vực công năng được bố trí cân xứng, đảm bảo tính thẩm mỹ và độ hài hoà cho tổng thể (Nguồn ảnh: Internet)
Nhà cấp 4 mái Thái là lựa chọn lý tưởng cho những gia chủ yêu thích vẻ đẹp sang trọng và độc đáo. Với độ dốc cao, kiểu mái này giúp thoát nước nhanh, chống nóng hiệu quả, đặc biệt phù hợp với khí hậu nhiệt đới. Gia chủ có thể linh hoạt lựa chọn mái xếp lớp hoặc giật cấp để tăng thêm nét độc đáo và bề thế cho ngôi nhà.

Mẫu nhà cấp 4 4 phòng ngủ mái thái sở hữu thiết kế sang trọng, hiện đại (Nguồn ảnh: Internet)

Ưu điểm của nhà cấp 4 mái thái là khả năng chống nóng vượt trội phù hợp với điều kiện khí hậu nhiệt đới (Nguồn ảnh: Internet)

Gia chủ có thể bố trí thêm sân vườn, tiểu cảnh để tăng sự tiện nghi cho không gian sống (Nguồn ảnh: Internet)
Nhà cấp 4 4 phòng ngủ 120m² mái nhật nổi bật với phần mái dốc nhẹ, mở rộng ra nhiều phía tạo cảm giác bề thế, vững chãi cho tổng thể ngôi nhà. Không gian sống bên trong được thiết kế ưu tiên sự thoáng đãng, gần gũi với thiên nhiên nên rất phù hợp với những ai theo đuổi không gian sống tinh tế, thanh thoát trong từng chi tiết.

Mẫu nhà cấp 4 120m² mái nhật đặc trưng với độ dốc thoải mang lại vẻ đẹp tinh tế (Nguồn ảnh: Internet)

Mẫu nhà cấp 4 120m² 4 phòng ngủ mang đến trải nghiệm sống hoà mình với thiên nhiên (Nguồn ảnh: Internet)

Mẫu nhà mái thái cấp 4 4 phòng ngủ đẹp, rộng rãi, tiện nghi (Nguồn ảnh: Internet)
Nhà cấp 4 mái bằng 120m² nổi bật với những hình khối vuông vức, các đường nét dứt khoát tạo nên vẻ đẹp khỏe khoắn và tối giản. Không chỉ ấn tượng về kiến trúc, kiểu mái này còn đem lại nhiều tiện ích khi có thể biến sân thượng thành góc thư giãn ngoài trời, khu vườn nhỏ xanh mát hoặc nơi bố trí các thiết bị kỹ thuật, vừa thực tế vừa nâng cao giá trị sử dụng. Cửa lùa nhôm kính là lựa chọn phổ biến cho những mẫu nhà này, giúp tối ưu ánh sáng và không gian.

Nhà cấp 4 mái bằng 120m² thiết kế mái phẳng, không có chóp nhọn, rõ hình khối vuông vức (Nguồn ảnh: Internet)

Nhà cấp 4 4 phòng ngủ mái bằng đơn giản, thiết kế cửa nhôm kính đón ánh nắng tự nhiên (Nguồn ảnh: Internet)

Thiết kế thu hút với khoảng sân vườn rộng cùng hệ cửa kính lớn mở rộng tầm nhìn (Nguồn ảnh: Internet)
Mẫu nhà cấp 4 4 phòng ngủ 120m² mái lệch gây ấn tượng với thiết kế mái phá cách, tạo nét trẻ trung và khác biệt so với kiểu mái truyền thống. Không gian rộng rãi với 4 phòng ngủ đáp ứng nhu cầu sinh hoạt của gia đình đông thành viên. Mái lệch còn mang lại khả năng thoát nước tốt và giúp ngôi nhà luôn thoáng mát.

Nhà cấp 4 mái lệch mang đến không gian sống hoàn hảo, đáp ứng nhu cầu của mọi thành viên trong gia đình (Nguồn ảnh: Internet)

Thiết kế trang nhã, tinh tế với hàng cây bao quanh làm điểm nhấn mang đến trải nghiệm sống thư giãn, bình yên (Nguồn ảnh: Internet)

Nhà mái lệch thường được thiết kế nhiều cửa sổ để đón ánh nắng tự nhiên
(Nguồn ảnh: Internet)
Mẫu nhà cấp 4 nông thôn 4 phòng ngủ 120m² phong cách tân cổ điển toát lên vẻ sang trọng với những đường phào chỉ tinh tế và bố cục cân đối. Không gian sống vừa rộng rãi vừa tiện nghi, phù hợp với gia đình đông thành viên. Sự kết hợp hài hòa giữa nét cổ điển và hiện đại mang đến một công trình bền vững, đẳng cấp và đầy tính thẩm mỹ.

Mẫu nhà cấp 4 nông thôn 4 phòng ngủ 120m² thiết kế theo phong cách tân cổ điển sở hữu các chi tiết trang trí tinh xảo được hoàn thiện tỉ mỉ, cầu kỳ (Nguồn ảnh: Internet)

Ngôi nhà có kiến trúc tân cổ điển bề thế, vững chãi (Nguồn ảnh: Internet)
Mẫu nhà cấp 4 4 phòng ngủ 120m² phong cách hiện đại nổi bật với hình khối vuông vức, đường nét tối giản và không gian mở thoáng sáng. Thiết kế ưu tiên sự tiện nghi, gắn kết giữa các khu vực sinh hoạt, mang lại cảm giác rộng rãi và thoải mái. Cửa nhôm lùa 3 cánh thường được ưa chuộng trong phong cách này nhờ khả năng tối ưu hóa ánh sáng và kết nối không gian trong – ngoài. Đây là lựa chọn lý tưởng cho gia đình trẻ yêu thích sự năng động và tinh tế trong kiến trúc.

Thiết kế nhà cấp 4 hiện đại đơn giản, thi công nhanh chóng giúp tối ưu chi phí hiệu quả (Nguồn ảnh: Internet)

Bên trong nội thất hiện đại, công nghệ cao đảm bảo cuộc sống tiện nghi, đẳng cấp (Nguồn ảnh: Internet)
Mẫu nhà cấp 4 4 phòng ngủ 120m² có sân vườn mang đến không gian sống trong lành, hài hòa với thiên nhiên. Với thiết kế mở, sân vườn được bố trí hợp lý giúp ngôi nhà thông thoáng hơn, đồng thời tạo nơi thư giãn lý tưởng cho cả gia đình.

Mẫu nhà cấp 4 mái thái 120m² có sân vườn rộng rãi vừa để đỗ xe vừa là khu vui chơi, giải trí cho cả gia đình (Nguồn ảnh: Internet)

Mẫu nhà cấp 4 4 phòng ngủ theo phong cách hiện đại kết hợp sân vườn rộng rãi (Nguồn ảnh: Internet)
Mẫu nhà cấp 4 4 phòng ngủ 120m² được ưa chuộng nhờ bố cục không gian khoa học và tính ứng dụng cao. Kiểu dáng chữ L giúp tối ưu diện tích, tách biệt rõ khu sinh hoạt chung và riêng tư, mang lại sự thuận tiện cho gia đình đông thành viên. Cửa nhôm 4 cánh thường được bố trí tại mặt tiền để tạo điểm nhấn kiến trúc và đón ánh sáng. Thiết kế này vừa đảm bảo công năng, vừa tạo sự thông thoáng và gắn kết với thiên nhiên xung quanh.

Mẫu nhà cấp 4 4 phòng ngủ chữ L tiện nghi và gần gũi với thiên nhiên mang đến trải nghiệm sống an lành (Nguồn ảnh: Internet)

Nhà cấp 4 chữ L có thể kết hợp với nhiều phong cách khác nhau từ tân cổ điển đến hiện đại (Nguồn ảnh: Internet)
Mẫu nhà cấp 4 4 phòng ngủ 120m² có gara ô tô mang đến sự tiện nghi và hiện đại trong sinh hoạt. Gara được thiết kế liền khối với ngôi nhà, vừa tiết kiệm diện tích vừa đảm bảo an toàn cho phương tiện. Không gian bên trong vẫn giữ được sự thoáng đãng, rộng rãi, đáp ứng tốt nhu cầu của gia đình đông thành viên.

Nhà cấp 4 nông thôn 4 phòng ngủ 120m² được bố trí thêm gara ô tô phù hợp với khu đất có diện tích rộng (Nguồn ảnh: Internet)

Mẫu nhà cấp 4 120m² mái lệch có khu vực để ô tô phá cách, ấn tượng
(Nguồn ảnh: Internet)
Mẫu nhà cấp 4 4 phòng ngủ 120m² có gác lửng là giải pháp lý tưởng để gia tăng diện tích theo chiều cao mà không cần phải xây thêm một tầng hoàn chỉnh. Không gian này có thể được sử dụng làm phòng thờ, phòng làm việc, phòng đọc sách hoặc một phòng ngủ phụ. Cửa kính khung nhôm 1 cánh là lựa chọn phù hợp cho các không gian gác lửng nhỏ, vừa đảm bảo ánh sáng vừa tiết kiệm diện tích mở. Đây là lựa chọn tối ưu cho những gia đình cần thêm công năng nhưng bị giới hạn về diện tích xây dựng.

Mẫu nhà cấp 4 4 phòng ngủ 120m² có gác lửng là lựa chọn lý tưởng cho những không gian nhỏ hẹp (Nguồn ảnh: Internet)

Thiết kế mặt tiền căn nhà cấp 4 120m² gác lửng kết hợp gara để ô tô (Nguồn ảnh: Internet)
1 – Lựa chọn phong cách kiến trúc & mái phù hợp, tạo sự thống nhất về thẩm mỹ cho tổng thể căn nhà. Đối với phong cách kiến trúc hiện đại, tân cổ điển thì gợi ý mái bằng hay mái Nhật có độ dốc nhẹ rất phù hợp còn mái Thái lại là lựa chọn hoàn hảo với phong cách kiến trúc sang trọng, phá cách.
2 – Tối ưu công năng & không gian
3 – Lưu ý yếu tố phong thủy
Sau đây là mức chi phí xây dựng nhà cấp 4 4 phòng ngủ 120m² theo khảo sát thị trường hiện nay:
Đơn giá hoàn thiện nhà cấp 4 4 phòng ngủ diện tích 120m² dự kiến rơi vào khoảng 700 – 1 tỷ đồng tuỳ theo vật liệu, phong cách kiến trúc và vị trí địa lý xây dựng công trình. Nhiều gia chủ thường thắc mắc cửa nhôm kính bao nhiêu tiền, chi phí này có thể dao động từ 1 – 6 triệu đồng/m² tùy loại.
Để nâng tầm giá trị và đảm bảo độ bền vững cho ngôi nhà, việc lựa chọn các giải pháp hoàn thiện cao cấp là một sự đầu tư thông minh. Là thương hiệu cửa nhôm nổi tiếng tại Nhật với lịch sử hơn 100 năm, TOSTEM tự hào mang đến các sản phẩm giúp ngôi nhà của bạn không chỉ đẹp mà còn bền vững theo thời gian, bao gồm nhiều mẫu cửa nhôm kính chia ô đẹp đa dạng phong cách.

Cửa nhôm TOSTEM – Điểm nhấn hoàn hảo cho mẫu nhà cấp 4 4 phòng ngủ 120m2 ( Nguồn: Tostem)
Với hơn 50+ thiết kế mẫu nhà cấp 4 4 phòng ngủ 120m² đa dạng, từ hiện đại, tân cổ điển đến có sân vườn hay gara ô tô, bạn hoàn toàn có thể lựa chọn phương án phù hợp với ngân sách và sở thích. Hy vọng bài viết này sẽ giúp gia chủ có sự chuẩn bị tốt nhất cho ngôi nhà mơ ước của mình.
Để được tư vấn giải pháp cửa nhôm phù hợp từ TOSTEM, vui lòng liên hệ hotline TOSTEM hoặc điền form tư vấn để nhận hỗ trợ nhanh chóng và chuyên nghiệp.
Thông tin liên hệ
|
News
News
Tin liên quan