Chia sẻ thông tin | 29.10.25
Với thiết kế gọn gàng, tiện nghi và dễ thi công, nhà ống cấp 4 nông thôn đang trở thành xu hướng được nhiều gia đình lựa chọn. Bài viết dưới đây sẽ gợi ý 40+ mẫu nhà ống cấp 4 nông thôn đẹp, đa dạng phong cách từ hiện đại, truyền thống đến sân vườn, kèm dự trù chi phí chi tiết giúp bạn dễ dàng chọn mẫu phù hợp với nhu cầu và ngân sách.
Với mức chi phí khoảng 200 – 300 triệu đồng, gia đình có thể xây dựng một ngôi nhà ống cấp 4 nông thôn có diện tích từ 50 – 70m², gồm 1 phòng khách, 1-2 phòng ngủ, bếp và nhà vệ sinh. Thiết kế thường theo phong cách tối giản với mái tôn hoặc mái bằng nhằm tiết kiệm chi phí. Các vật liệu phổ biến là gạch, xi măng, gỗ công nghiệp và cửa nhôm kính giá rẻ. Mẫu nhà này đặc biệt phù hợp với các gia đình trẻ hoặc cặp vợ chồng mới cưới.

Nhà ống cấp 4 giá 200 – 300 triệu với phong cách thiết kế tối giản. (Nguồn: Internet)

Mẫu nhà ống cấp 4 giá 200 – 300 triệu đẹp. (Nguồn: Internet)

Với ngân sách hạn chế, gia chủ nên lựa chọn những mẫu nhà ống cấp thiết kế đơn giản. (Nguồn: Internet)

Mẫu nhà ống cấp 4 tối ưu chi phí xây dựng. (Nguồn: Internet)
Khi ngân sách xây dựng tăng lên khoảng 500 triệu đồng, các gia đình có thêm nhiều lựa chọn về diện tích và phong cách thiết kế nhà ống cấp 4 hơn. Với ngân sách này, gia chủ có thể xây nhà cấp 4 với diện tích khoảng 70-100m², và có thể bố trí công năng hợp lý gồm 1 phòng khách, 2-3 phòng ngủ, khu bếp, phòng thờ và sân nhỏ phía trước hoặc sau.

Với ngân sách 500 triệu, gia chủ có thêm nhiều lựa chọn cho nhà ống cấp 4 hơn. (Nguồn: Internet)

Nhà ống cấp 4 giá 500 triệu với phong cách thiết kế hiện đại. (Nguồn: Internet)

Nhà ống cấp 4 khoảng 500 triệu. (Nguồn: Internet)
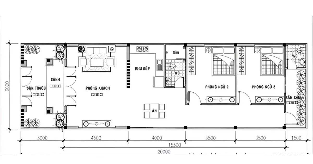
Mẫu nhà ống cấp 4 nông thôn 2 phòng ngủ được nhiều gia đình nhỏ từ 3-4 người lựa chọn nhờ thiết kế gọn gàng và chi phí hợp lý. Với diện tích khoảng 60-80m², ngôi nhà thường bố trí phòng khách kết hợp khu thờ ở phía trước, hai phòng ngủ đặt liền kề hoặc đối xứng, còn khu bếp và nhà vệ sinh được sắp xếp phía sau để tránh ám mùi.

Nhà ống cấp 4 2 phòng ngủ. (Nguồn: Internet)

Mẫu nhà ống cấp 4 nông thôn 2 phòng ngủ được nhiều gia đình nhỏ từ 3-4 người lựa chọn. (Nguồn: Internet)

Gợi ý cách bố trí công năng cho mẫu nhà ống cấp 4 2 phòng ngủ.(Nguồn: Internet)
Nhà ống cấp 4 có 3 phòng ngủ là lựa chọn lý tưởng cho gia đình 4-6 người hoặc gia đình nhiều thế hệ cùng sinh sống. Với diện tích khoảng 90-120m², ngôi nhà thường bố trí phòng khách rộng phía trước, tiếp đến là ba phòng ngủ sắp xếp dọc theo chiều nhà hoặc hai bên hông để đảm bảo sự riêng tư. Khu bếp và phòng vệ sinh được thiết kế tách biệt, giúp không gian luôn khô thoáng và gọn gàng.

Nhà ống cấp 4 3 phòng ngủ. (Nguồn: Internet)

Nhà ống cấp 4 có 3 phòng ngủ là lựa chọn lý tưởng cho gia đình 4-6 người hoặc gia đình nhiều thế hệ cùng sinh sống. (Nguồn: Internet)

Gợi ý cách bố trí công năng cho mẫu nhà ống cấp 4 3 phòng ngủ. (Nguồn: Internet)
Nhà ống cấp 4 mái Thái được yêu thích nhờ thiết kế thanh thoát và khả năng chống nóng, chống ẩm hiệu quả. Phần mái dốc cao giúp thoát nước nhanh, phù hợp với khí hậu nhiệt đới gió mùa ở nông thôn Việt Nam. Kiểu mái này thường kết hợp cùng mặt tiền đơn giản, tạo nên tổng thể vừa sang trọng vừa gần gũi. Không gian bên trong có thể bố trí linh hoạt từ 2 đến 3 phòng ngủ, đáp ứng tốt nhu cầu của gia đình trẻ hoặc nhiều thế hệ.

Nhà ống cấp 4 mái Thái được yêu thích nhờ thiết kế thanh thoát và khả năng chống nóng, chống ẩm hiệu quả. (Nguồn: Internet)

Nhà ống cấp 4 mái Thái. (Nguồn: Internet)

Mẫu nhà ống cấp 4 mái Thái đẹp, hiện đại. (Nguồn: Internet)

Mẫu nhà ống cấp 4 mái Thái tối ưu công năng. (Nguồn: Internet)
Nhà ống cấp 4 mái Nhật mang nét hài hòa giữa truyền thống và hiện đại, với đặc trưng là mái dốc nhẹ, mở rộng sang hai bên, giúp thoát nước tốt và tăng tính thẩm mỹ. Kiểu mái này tạo cảm giác thanh thoát, sang trọng nhưng vẫn gần gũi, rất phù hợp với cảnh quan nông thôn.

Nhà ống cấp 4 mái Nhật. (Nguồn: Internet)

Mẫu thiết kế nhà ống cấp 4 mái Nhật sang trọng. (Nguồn: Internet)

Mẫu thiết kế nhà ống cấp 4 mái Nhật phong cách tân cổ điển. (Nguồn: Internet)

Nhà ống cấp 4 mái Nhật với đặc trưng là mái dốc nhẹ. (Nguồn: Internet)
Nhà ống cấp 4 mái bằng là lựa chọn hiện đại, trẻ trung và phù hợp với những gia đình yêu thích phong cách tối giản. Thiết kế mái phẳng mang lại vẻ đẹp gọn gàng, tinh tế, tối ưu không gian sử dụng – có thể tận dụng phần mái để trồng cây xanh, phơi đồ hoặc làm sân thượng thư giãn. Nhờ cấu trúc vững chắc, loại mái này cũng giúp ngôi nhà chống chịu tốt với gió bão và tiết kiệm chi phí bảo trì.

Mẫu thiết kế nhà ống cấp 4 mái bằng phong cách hiện đại. (Nguồn: Internet)

Nhà ống cấp 4 mái bằng. (Nguồn: Internet)

Nhà ống cấp 4 mái bằng giúp ngôi nhà chống chịu tốt với gió bão và tiết kiệm chi phí bảo trì. (Nguồn: Internet)
Giữa nhiều lựa chọn về vật liệu và kiểu mái, nhà ống cấp 4 mái tôn vẫn giữ được sức hút riêng nhờ tính kinh tế và tính ứng dụng cao. Loại mái này có ưu điểm nhẹ, dễ thi công, giúp tiết kiệm đáng kể chi phí cũng như thời gian xây dựng. Các mẫu tôn hiện đại với màu sắc và kiểu dáng đa dạng mang đến vẻ ngoài tươi mới, hiện đại cho ngôi nhà.

Mẫu thiết kế nhà ống cấp 4 với phần mái tôn màu xanh bắt mắt. (Nguồn: Internet)
Mang vẻ đẹp truyền thống xen lẫn nét sang trọng, nhà ống cấp 4 mái ngói là lựa chọn được nhiều gia đình yêu thích ở nông thôn Việt Nam. Mái ngói không chỉ giúp ngôi nhà mát mẻ vào mùa hè, ấm áp vào mùa đông mà còn có độ bền cao, ít bị ảnh hưởng bởi thời tiết. Kiểu mái này thường được thiết kế theo phong cách Thái hoặc Nhật, tạo nên tổng thể hài hòa và tinh tế.

Nhà ống cấp 4 mái ngói. (Nguồn: Internet)

Nhà ống mái ngói có độ bền cao. (Nguồn: Internet)
Nhà ống cấp 4 hiện đại mang đến diện mạo trẻ trung, tối giản và phù hợp với nhịp sống năng động ngày nay. Với đường nét kiến trúc vuông vức, màu sắc trung tính và vật liệu hiện đại như kính, thép, gạch ốp giả đá, kiểu nhà này tạo cảm giác rộng rãi và thoáng sáng dù diện tích khiêm tốn.

Nhà ống cấp 4 hiện đại. (Nguồn: Internet)

Nhà ống cấp 4 hiện đại với thiết kế tối giản. (Nguồn: Internet)
Thiết kế này khéo léo kết hợp kiến trúc hiện đại với mảng xanh tự nhiên, tạo nên nơi ở vừa tiện nghi vừa thư thái. Khu vườn nhỏ phía trước hoặc sau nhà có thể được bố trí tiểu cảnh, trồng hoa, cây xanh hay đặt bàn trà nghỉ ngơi, nhà ống cấp 4 có sân vườn không chỉ giúp điều hòa không khí, sân vườn còn mang lại cảm giác an yên, giúp các thành viên tận hưởng trọn vẹn cuộc sống bình dị giữa thiên nhiên.

Nhà ống cấp 4 có sân vườn. (Nguồn: Internet)

Nhà ống cấp 4 có sân vườn không chỉ giúp điều hòa không khí, sân vườn còn mang lại cảm giác an yên. (Nguồn: Internet)
Sự xuất hiện của gara ô tô trong nhà ống cấp 4 mang đến tiện ích đáng kể cho các gia đình nông thôn hiện đại. Không gian này thường được bố trí ở phía trước hoặc bên hông nhà, kết hợp mái che hoặc cửa cuốn để bảo vệ xe an toàn. Cách sắp xếp khéo léo giúp tổng thể ngôi nhà vừa gọn gàng, vừa giữ được sự thông thoáng, đáp ứng nhu cầu sinh hoạt tiện nghi của gia chủ.

Nhà ống cấp 4 có gara ô tô. (Nguồn: Internet)

Sự xuất hiện của gara ô tô trong nhà ống cấp 4 mang đến tiện ích đáng kể cho các gia đình nông thôn hiện đại. (Nguồn: Internet)
Nhà ống cấp 4 chữ L nổi bật với ưu điểm linh hoạt trong bố cục, giúp tận dụng tối đa diện tích đất và tạo cảm giác thoáng đãng cho không gian sống. Phần góc chữ L thường được bố trí làm sân nhỏ, nơi đón sáng và gió tự nhiên, hoặc làm khu để xe, tiểu cảnh. Bên trong, các phòng được phân chia hợp lý, đảm bảo sự riêng tư mà vẫn giữ được sự kết nối giữa các khu vực sinh hoạt.

Nhà ống cấp 4 chữ L nổi bật với ưu điểm linh hoạt trong bố cục, giúp tận dụng tối đa diện tích đất. (Nguồn: Internet)
Bằng cách tận dụng chiều cao khối nhà, mẫu nhà ống cấp 4 có gác lửng giúp mở rộng không gian sinh hoạt mà không cần tăng diện tích xây dựng. Phần gác lửng có thể biến thành phòng ngủ, khu làm việc hoặc nơi chứa đồ, mang lại sự linh hoạt trong bố trí. Bên cạnh đó, thiết kế thông tầng giúp ánh sáng và gió lưu thông tốt hơn, tạo cảm giác thoáng đãng.

Mẫu thiết kế nhà ống cấp 4 có gác lửng tối ưu chi phí. (Nguồn: Internet)

Nhà ống cấp 4 có gác lửng. (Nguồn: Internet)

Nhà ống cấp 4 có gác lửng giúp mở rộng không gian sinh hoạt mà không cần tăng diện tích xây dựng. (Nguồn Internet)
Khi lên kế hoạch xây dựng nhà ống cấp 4 nông thôn, việc dự trù chi phí chi tiết cho từng hạng mục giúp gia chủ kiểm soát ngân sách và tránh phát sinh trong quá trình thi công. Các khoản chi chính thường bao gồm:
Lưu ý: Những chi phí nêu trên chỉ mang tính chất tham khảo, có thể thay đổi tùy theo loại vật liệu sử dụng, yêu cầu thiết kế và thời điểm thi công.
Cửa nhôm TOSTEM – Điểm nhấn hiện đại cho nhà ống cấp 4 nông thôn
TOSTEM – Điểm nhấn hiện đại cho nhà gỗ cấp 4 nông thôn |
Nhà ống cấp 4 nông thôn không chỉ là giải pháp tối ưu cho diện tích hẹp mà còn mang đến không gian sống tiện nghi, hiện đại và tiết kiệm chi phí. Để nâng tầm giá trị ngôi nhà, lựa chọn cửa TOSTEM chính là giải pháp thông minh: bền vững, an toàn, cách âm – cách nhiệt vượt trội và giữ được vẻ đẹp tinh tế lâu dài.
Liên hệ với TOSTEM qua số hotline hoặc đến trực tiếp showroom TOSTEM để được trải nghiệm và tư vấn chi tiết về các dòng sản phẩm cửa nhôm cao cấp để biến không gian sống của bạn trở nên hiện đại, thoáng sáng và trọn vẹn hơn!
Thông tin liên hệ
|
News
News
Tin liên quan