Chia sẻ thông tin | 30.09.25
Việc lựa chọn bản vẽ nhà cấp 4 nông thôn phù hợp không phải lúc nào cũng dễ dàng, bởi mỗi gia đình đều có nhu cầu và điều kiện khác nhau. Nếu bạn đang tìm kiếm những mẫu thiết kế nhà cấp 4 nông thôn đẹp, tối ưu công năng và tiết kiệm chi phí thì đừng bỏ qua bài viết này. Tại đây, TOSTEM sẽ giới thiệu đến bạn những xu hướng kiến trúc được ưa chuộng hiện nay giúp bạn kiến tạo tổ ấm của riêng mình.
Mẫu thiết kế này thường có diện tích từ 40 – 60m² với 1 phòng khách, 1 – 2 phòng ngủ, 1 nhà vệ sinh và khu vực bếp kết hợp phòng ăn. Bản vẽ thường có cấu trúc đơn giản, tối ưu chi phí xây dựng, rút ngắn thời gian thi công và tạo không gian sống tiện nghi, dễ dàng sắp xếp nội thất.

Bản vẽ 3D mẫu nhà cấp 4 diện tích hạn chế có 1 phòng ngủ (Nguồn: Internet)

Thiết kế phù hợp cho những gia đình nhỏ (Nguồn: Internet)

Bản vẽ nhà cấp 4 nông thôn đơn giản có đầy đủ các không gian tiện ích (Nguồn: Internet)
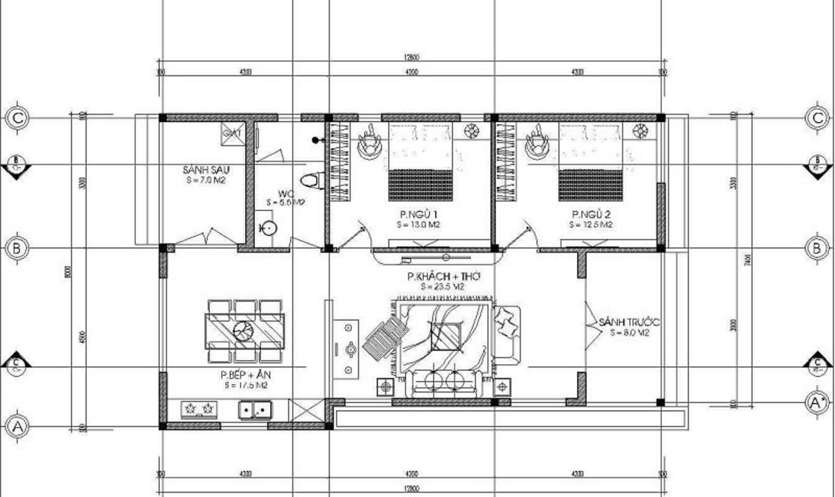
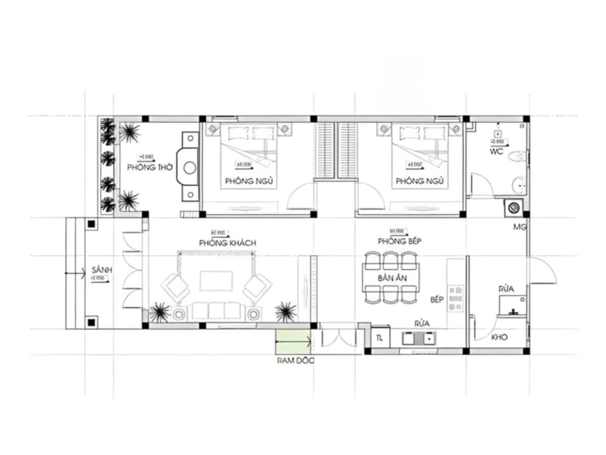
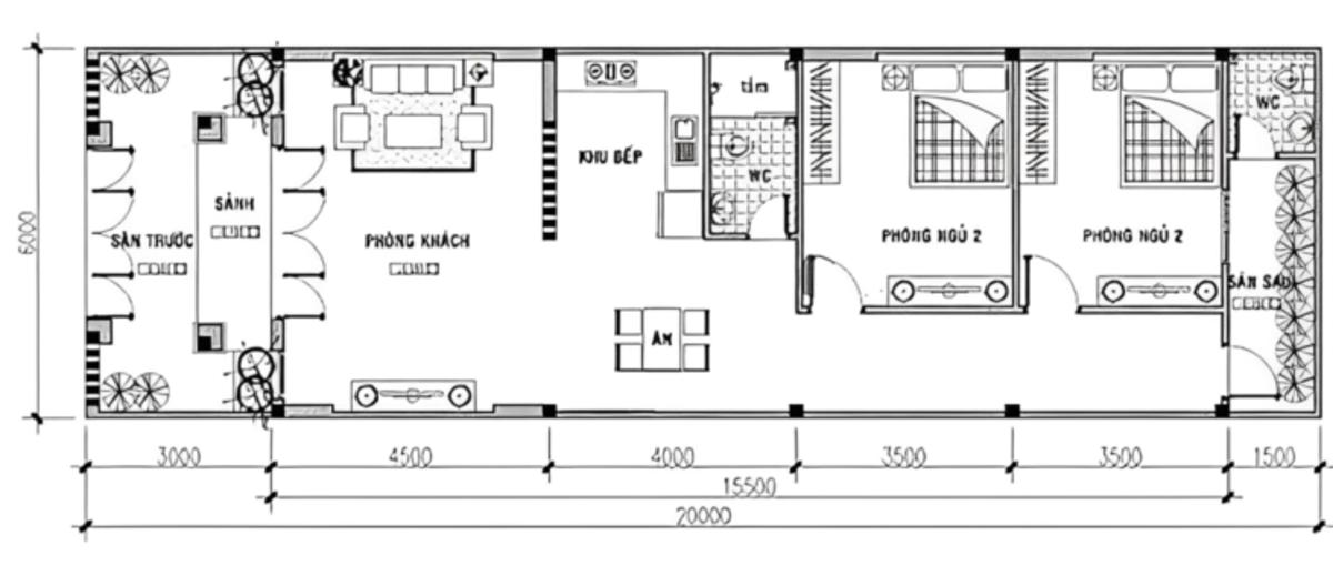
Với diện tích từ 60 – 80m², mẫu nhà cấp 4 2 phòng ngủ mở ra không gian sống ấm cúng, phù hợp với các gia đình nhỏ, vợ chồng mới cưới hoặc có một con. Cấu trúc phổ biến thường bao gồm 1 phòng khách, 2 phòng ngủ, khu vực bếp + ăn, 1 nhà vệ sinh và có thể thêm hiên trước nhà. Mẫu nhà này vừa đáp ứng tốt nhu cầu sinh hoạt cơ bản, vừa có chi phí xây dựng hợp lý và thời gian thi công nhanh chóng.

Nhà 2 phòng ngủ phù hợp với những gia đình nhỏ 2 thế hệ (Nguồn: Internet)

Không gian đáp ứng nhu cầu sinh hoạt cơ bản của một gia đình (Nguồn: Internet)

Một thiết kế nhà cấp 4 cơ bản (Nguồn: Internet)
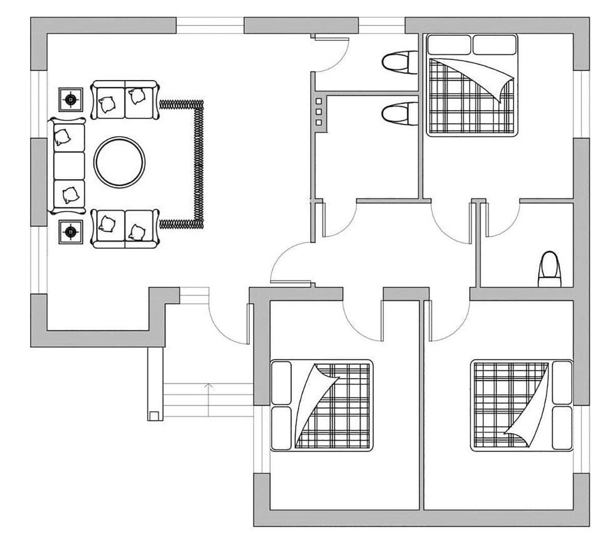
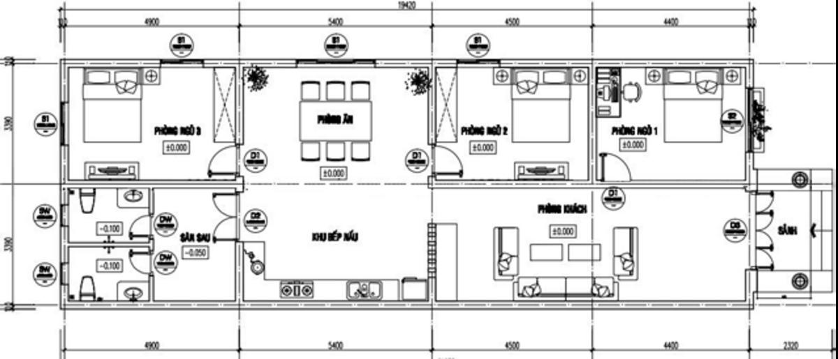
Nhà cấp 4 với 3 phòng ngủ là giải pháp hoàn hảo cho gia đình có từ 2 – 3 thế hệ cùng chung sống, cần không gian sống thoáng đãng, thoải mái và gần gũi với thiên nhiên. Diện tích xây dựng thường dao động từ 90 – 110m², được bố trí khoa học với 1 phòng khách, 3 phòng ngủ, bếp + ăn, 2 nhà vệ sinh và các khoảng không gian mở như hiên nhà, sân vườn rộng.

Bản vẽ nhà cấp 4 nông thôn có khu vực sân vườn rộng rãi (Nguồn: Internet)

Nhà đủ rộng rãi cho gia đình có nhiều thành viên (Nguồn: Internet)

Nhà cấp 4 có 3 phòng ngủ và phòng bếp lớn (Nguồn: Internet)
Nếu có diện tích từ 100 – 120m², bạn có thể bố trí 1 phòng khách, 3 phòng ngủ, khu vực bếp + ăn, 2 nhà vệ sinh và một hiên nhà chạy dọc theo hình dáng chữ L.
Thiết kế nhà chữ L tạo ra một khoảng sân rộng rãi mà còn giúp tách biệt không gian sinh hoạt chung và khu vực phòng ngủ, mang lại sự riêng tư cần thiết. Nhờ cấu trúc mở, nhà chữ L cũng dễ dàng đón nhận ánh sáng và gió tự nhiên, cho cảm giác thoáng đãng.

Nhà cấp 4 chữ L có 3 phòng ngủ đơn giản (Nguồn: Internet)

Nhà chữ L được rất nhiều người Việt ưa chuộng (Nguồn: Internet)

Gia chủ có thể tận dụng góc chữ L để làm sân vườn (Nguồn: Internet)
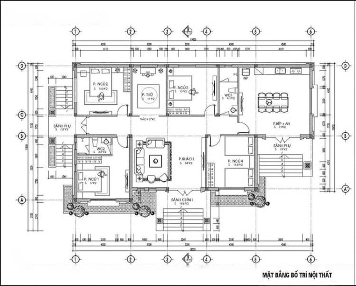
Nhà chữ U là một trong những lựa chọn tối ưu cho gia đình có nhiều thành viên và diện tích đất lớn từ 110 – 140m². Mẫu nhà thường tích hợp 1 phòng khách, 3 – 4 phòng ngủ, bếp + ăn, 2 – 3 nhà vệ sinh và một khoảng sân vườn lớn ở giữa. Ưu điểm nổi bật của kiểu dáng này là khả năng tận dụng tối đa ánh sáng và gió từ cả hai mặt, không gian sống và khu vực nghỉ ngơi được phân tách rõ ràng, mang lại sự yên tĩnh và riêng tư.
>>> Để tối ưu không gian mở và kết nối với sân vườn, gia chủ có thể tham khảo thêm các mẫu cửa nhôm 4 cánh.

Nhà hình chữ U phù hợp với mảnh đất có diện tích rộng (Nguồn: Internet)

Bản vẽ nhà cấp 4 nông thôn sở hữu 4 phòng ngủ lớn (Nguồn: Internet)

Nên bài trí nhiều cửa đi và cửa sổ lớn để không gian bên trong được thông thoáng tối đa (Nguồn: Internet)
Nhà mái Thái thường có 3 – 4 phòng ngủ, 2 – 3 nhà vệ sinh cùng các không gian sinh hoạt chung rộng rãi với diện tích từ 100 – 130m². Kiểu mái nổi bật nhờ khả năng thoát nước tốt, chống nóng hiệu quả và có giá trị thẩm mỹ cao, góp phần tạo vẻ ngoài bề thế và tinh tế cho ngôi nhà.

Mặt đứng của mẫu nhà cấp 4 mái Thái (Nguồn: Internet)

Cần bố trí các khu vực chức năng sao cho tối ưu diện tích một cách hợp lý (Nguyền: Internet)

Bản vẽ nhà cấp 4 nông thôn mái thái đẹp (Nguồn: Internet)
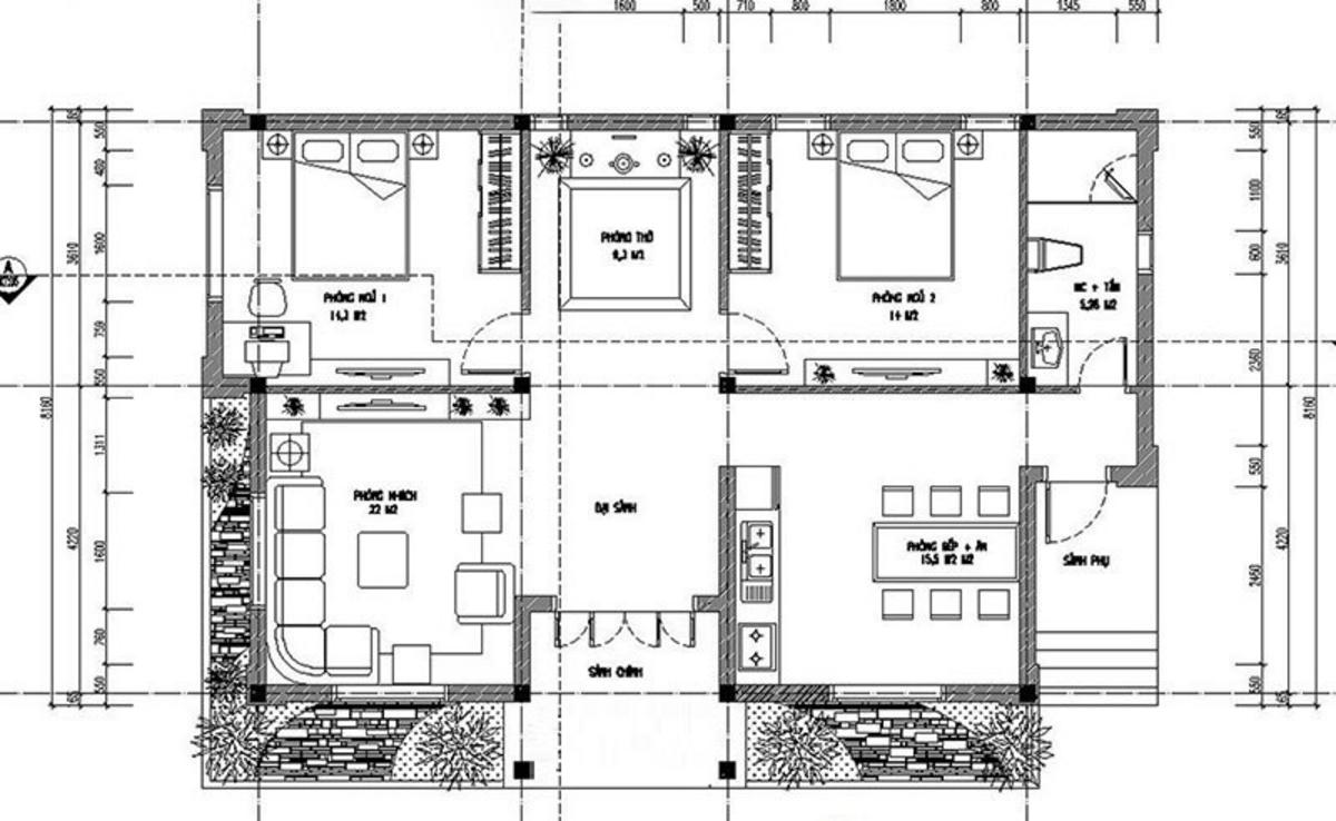
Mái Nhật, hay còn gọi là mái lùn, mang đến vẻ đẹp tối giản và hiện đại, phù hợp với mảnh đất rộng khoảng 90 – 120m² với 3 phòng ngủ, 2 nhà vệ sinh cùng hiên trước tiện nghi. Đặc trưng của mái Nhật là độ dốc vừa phải, tối ưu ánh sáng tự nhiên, dễ bảo trì và thi công. Kiểu nhà này rất được ưa chuộng bởi sự đơn giản, tinh tế và hài hòa với cảnh quan xung quanh.

Mặt dựng của nhà cấp 4 mái Nhật (Nguồn: Internet)

Thiết kế công trình nhà cấp 4 mái Nhật lớn (Nguồn: Internet)

Cận cảnh phần mặt bằng mái Nhật (Nguồn: Internet)
Bản vẽ nhà cấp 4 mái bằng theo phong cách hiện đại, tập trung vào sự tối giản. Thiết kế có hình khối vuông vức, đường thẳng rõ ràng. Mái bằng giúp tiết kiệm chi phí, tạo không gian trên mái để làm sân thượng hoặc vườn cây.
>>> Xem thêm các mẫu cửa nhôm đẹp phù hợp với ngôi nhà của bạn

Phiên bản nhà cấp 4 mái bằng diện tích nhỏ có phong cách hiện đại (Nguồn: Internet)

Bản vẽ nhà cấp 4 nông thôn có thiết kế mở hiện đại (Nguồn: Internet)

Mái bằng được nhiều người lựa chọn bởi dễ thi công (Nguồn: Internet)
Khi cần thêm không gian sử dụng nhưng không muốn xây thêm tầng, nhà cấp 4 có gác lửng là một giải pháp tối ưu khi tận dụng chiều cao để tăng diện tích sử dụng một cách hiệu quả và tiết kiệm chi phí. Nếu có diện tích sàn khoảng 80 – 100m² và gác lửng từ 20 – 30m², gia chủ có thể bố trí 2 – 3 phòng ngủ ở tầng trệt và khu gác lửng có thể dùng làm phòng ngủ phụ, phòng làm việc hoặc kho chứa đồ.

Mặt cắt dọc của mẫu nhà cấp 4 có gác lửng (Nguồn: Internet)

Gác lửng giúp mở rộng không gian sống cho gia chủ (Nguồn: Internet)

Không gian sinh hoạt chung được ưu tiên đặt ở tầng dưới (Nguồn: Internet)
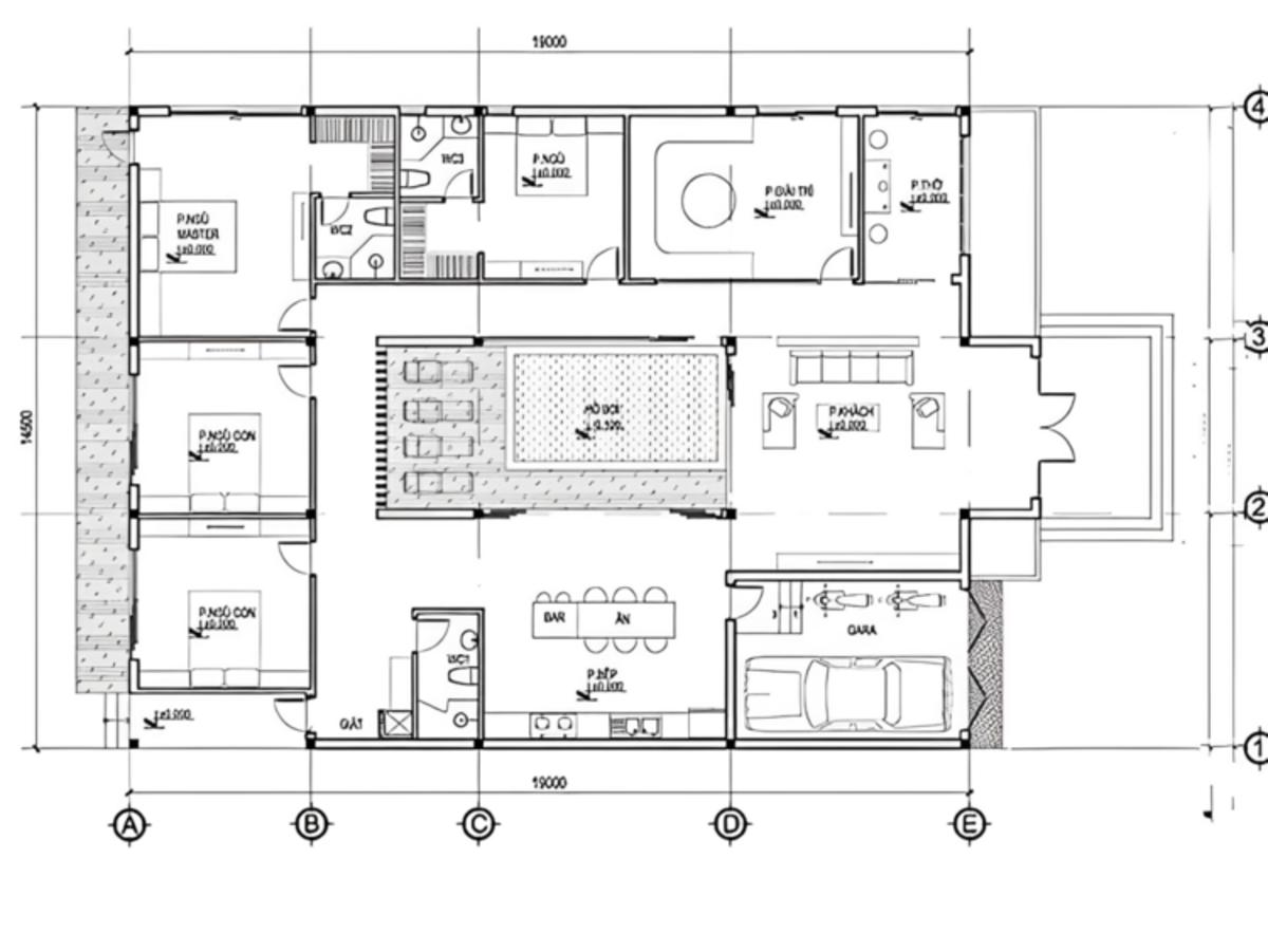
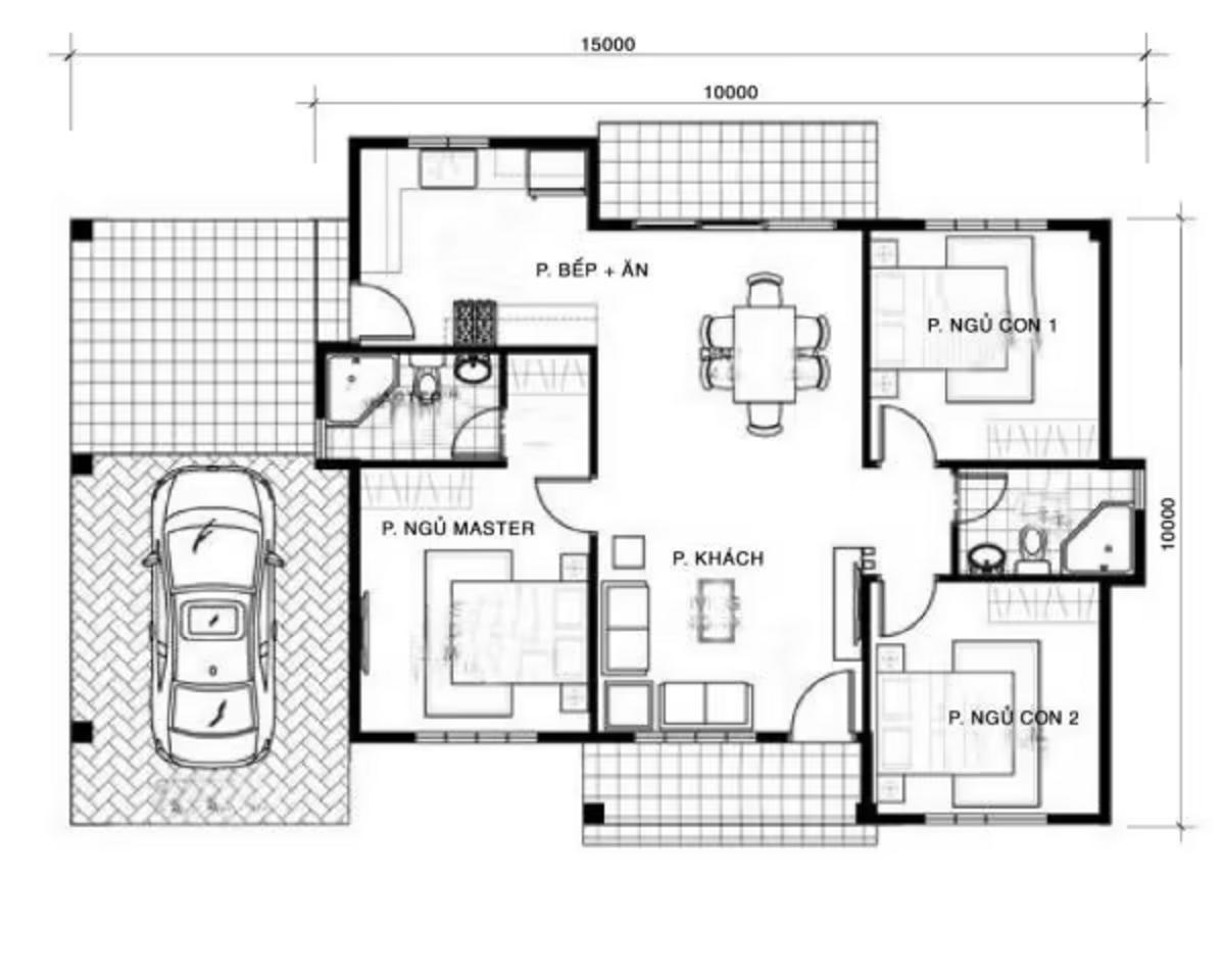
Với những gia đình có ô tô, việc tích hợp gara vào thiết kế nhà là một sự lựa chọn thông minh. Mẫu nhà này thường có diện tích rộng hơn, từ 100 – 120m², bao gồm gara ô tô, 2 – 3 phòng ngủ, 2 nhà vệ sinh và các khu vực chức năng khác. Việc có gara tích hợp không chỉ giúp bảo vệ xe khỏi các yếu tố thời tiết mà còn tạo sự thuận tiện.

Bản vẽ nhà cấp 4 nông thôn phù hợp với gia đình có ô tô (Nguồn: Internet)

Ngôi nhà sở hữu thiết kế đơn giản đáp ứng được nhu cầu người dùng hiện đại (Nguồn: Internet)

Nhà cấp 4 có gara thường đòi hỏi diện tích rộng (Nguồn: Internet)
Nhà kết hợp tiểu cảnh rất tuyệt nếu bạn yêu thích thiên nhiên và mong muốn một không gian sống thư thái, hài hòa. Với diện tích từ 110 – 140m², gia chủ có thể bố trí 3 – 4 phòng ngủ cùng tiểu cảnh sân vườn hoặc ao nước nhỏ. Sự kết hợp này không chỉ tăng cường ánh sáng, thông gió mà còn mang lại giá trị thẩm mỹ cao, tạo nên một không gian sống thư giãn và hợp phong thủy.

Bản vẽ nhà cấp 4 nông thôn sở hữu không gian xanh rộng rãi (Nguồn: Internet)

Sử dụng nhiều tiểu cảnh giúp ngôi nhà thêm phần thoải mái (Nguồn: Internet)

Một tổ ấm lý tưởng cho những người yêu thích thiên nhiên (Nguồn: Internet)
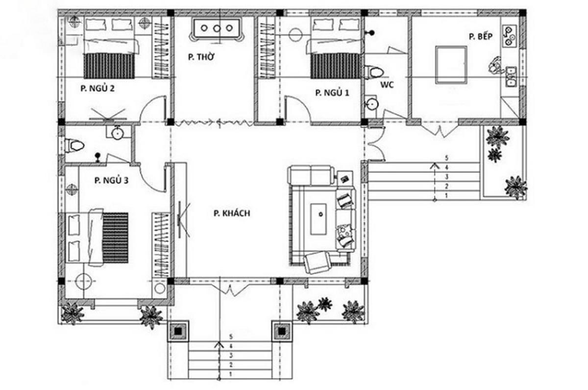
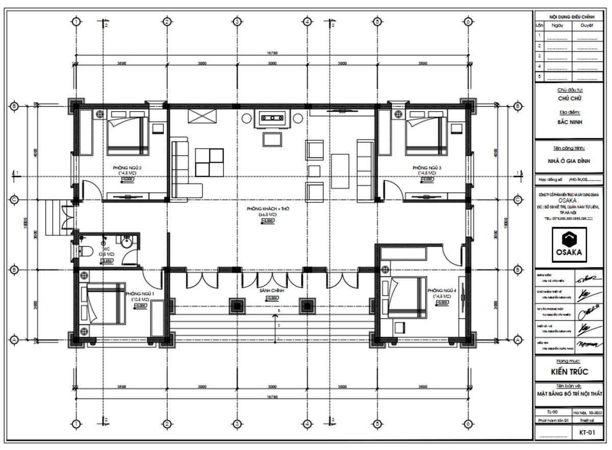
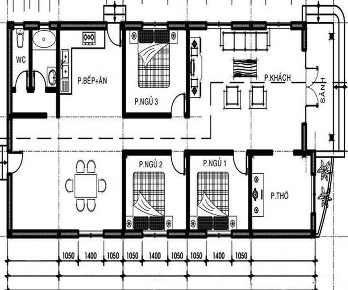
Đối với những gia đình nhiều thế hệ hoặc coi trọng yếu tố tâm linh, phong thủy, một mẫu nhà có phòng thờ riêng là rất cần thiết. Với diện tích từ 120 – 140m², nhà được thiết kế để có một phòng thờ tách biệt, đảm bảo sự trang nghiêm và yên tĩnh cần thiết. Ngoài ra, nhà vẫn có đầy đủ các không gian khác như 3 – 4 phòng ngủ, 2 nhà vệ sinh, đáp ứng nhu cầu sinh hoạt.

Không gian phòng thờ tạo sự yên tĩnh cần thiết (Nguồn: Internet)

Phòng thờ thường được ưu tiên đặt ở mặt trước ngôi nhà (Nguồn: Internet)

Bản vẽ nhà cấp 4 nông thôn có phòng thờ riêng (Nguồn: Internet)
Mỗi bản vẽ đều tuân thủ các quy chuẩn kỹ thuật nhất định, giúp người đọc (kiến trúc sư, kỹ sư, thợ xây) dễ dàng nắm bắt thông tin:
Bộ bản vẽ chi tiết thường bao gồm các mặt cắt và mặt đứng khác nhau để cung cấp cái nhìn toàn diện về công trình:

Các yếu tố cơ bản trong một bản vẽ nhà cấp 4 nông thôn (Nguồn: Internet)
Qua bài viết, hy vọng bạn đã và lựa chọn được một bản vẽ nhà cấp 4 nông thôn phù hợp với nhu cầu của gia đình. Việc tìm hiểu kỹ lưỡng và tham khảo ý kiến chuyên gia sẽ giúp bạn biến ước mơ về một ngôi nhà đẹp, tiện nghi thành hiện thực.
TOSTEM – thương hiệu cửa nhôm hàng đầu Nhật Bản, mang đến sản phẩm cao cấp, tối ưu cho mọi bản vẽ nhà cấp 4. Với quy trình sản xuất đồng bộ, sản phẩm của TOSTEM nổi bật bởi thiết kế tinh tế, chất lượng bền bỉ và tính thẩm mỹ vượt trội, góp phần nâng tầm vẻ đẹp và sự tiện nghi cho không gian sống của người Việt.
Thông tin liên hệ
|
News
News
Tin liên quan