Chia sẻ thông tin | 10.01.26
Nhà cấp 4 mái Nhật được nhiều gia đình lựa chọn nhờ thiết kế thanh lịch, phù hợp khí hậu Việt Nam và dễ dàng cân đối giữa thẩm mỹ cùng chi phí xây dựng. Thông qua hệ thống bản vẽ chi tiết, gia chủ có thể chủ động bố trí công năng hợp lý và kiểm soát tốt tiến độ thi công trong quá trình xây nhà. Trong bài viết sau, hãy cùng TOSTEM tham khảo những bản vẽ nhà cấp 4 mái Nhật nổi bật để tìm ra giải pháp tối ưu cho tổ ấm của bạn nhé.
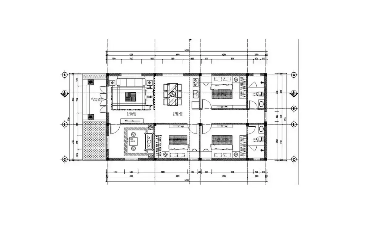
Nhà cấp 4 mái Nhật 3 phòng ngủ thường có diện tích dao động từ 90 – 110m², được bố trí khoa học với 1 phòng khách, 3 phòng ngủ, khu vực bếp kết hợp phòng ăn, 2 nhà vệ sinh và sân phơi. Thiết kế này phù hợp với gia đình từ 3 – 5 người, nhất là các cặp vợ chồng có 2 con đang tìm kiếm không gian sống lâu dài bởi chi phí xây dựng vừa phải, phù hợp với nhiều diện tích đất khác nhau nhưng vẫn đảm bảo tính tiện nghi và thẩm mỹ.

Nhà cấp 4 mái Nhật 3 phòng ngủ phù hợp với gia đình từ 3 – 5 người (Nguồn ảnh: Internet)

Nhà cấp 4 mái Nhật 3 phòng ngủ phù hợp với nhiều diện tích đất khác nhau nhưng vẫn đảm bảo tính tiện nghi và thẩm mỹ (Nguồn ảnh: Internet)

Nhà cấp 4 mái Nhật 3 phòng ngủ thường được bố trí khoa học với 1 phòng khách, 3 phòng ngủ, khu vực bếp kết hợp phòng ăn, 2 nhà vệ sinh và sân phơi (Nguồn ảnh: Internet)
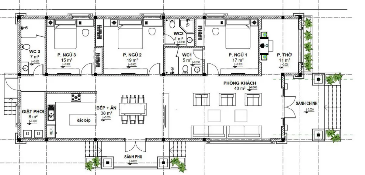
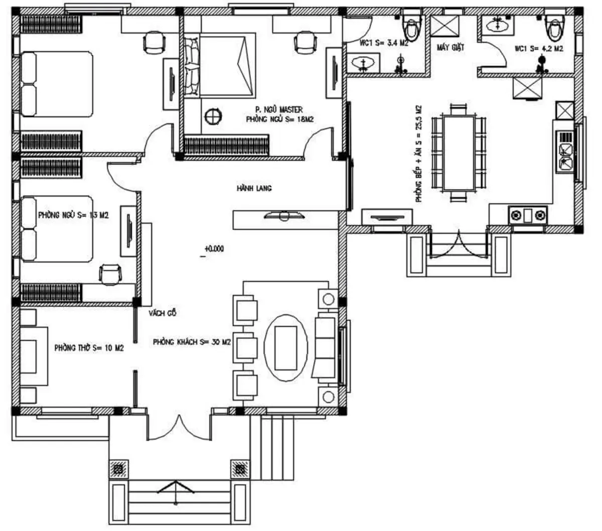
Nhà cấp 4 mái Nhật 4 phòng ngủ thường có diện tích từ 120 – 150m², mang đến không gian sống rộng rãi và thoải mái cho gia đình đông thành viên, có cả ông bà cùng sinh sống. Công năng được bố trí đầy đủ với 1 phòng khách, 4 phòng ngủ, khu bếp kết hợp phòng ăn, 2 – 3 nhà vệ sinh cùng gara hoặc sân phơi.

Nhà cấp 4 mái Nhật 4 phòng ngủ thường có diện tích từ 120 – 150m² (Nguồn ảnh: Internet)
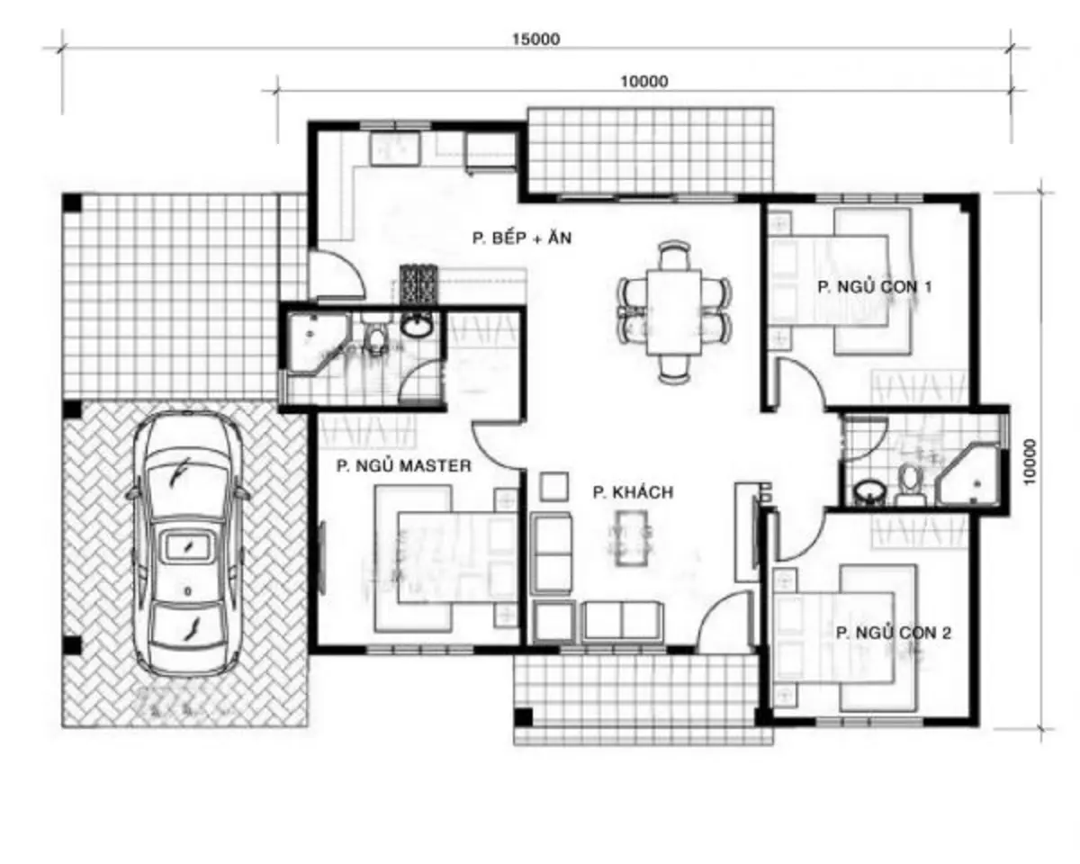
Nhà cấp 4 mái Nhật 100m² được nhiều gia đình lựa chọn nhờ chi phí xây dựng vừa phải, thời gian thi công nhanh, thiết kế gọn gàng nhưng vẫn đầy đủ tiện nghi. Với tổng diện tích 100m², không gian bên trong được bố trí gọn gàng với 1 phòng khách, 3 phòng ngủ, khu bếp kết hợp phòng ăn, 1 – 2 nhà vệ sinh và sân phơi. Thiết kế này phù hợp với gia đình từ 3 – 4 người, muốn cân đối giữa chi phí xây dựng với không gian sống thẩm mỹ, chất lượng cao.

Nhà cấp 4 mái Nhật 100m² được nhiều gia đình lựa chọn nhờ chi phí xây dựng vừa phải, thời gian thi công nhanh (Nguồn ảnh: Internet)
So với 100m², mẫu nhà cấp 4 mái Nhật 120m² được nhiều gia đình 4 – 5 người lựa chọn hơn để đảm bảo có không gian sống rộng rãi và thoáng đãng. Công năng được bố trí linh hoạt với 1 phòng khách, 3 – 4 phòng ngủ, khu bếp kết hợp phòng ăn, 2 nhà vệ sinh cùng gara hoặc sân vườn nhỏ. Mẫu nhà mang đến sự cân bằng hài hòa giữa chi phí xây dựng và mức độ tiện nghi, đồng thời dễ dàng bố trí thêm phòng thờ hoặc góc sinh hoạt chung cho gia đình.

Nhà cấp 4 mái Nhật 120m² mang đến không gian sống rộng rãi và thoáng đãng cho gia đình 4 – 5 người (Nguồn ảnh: Internet)
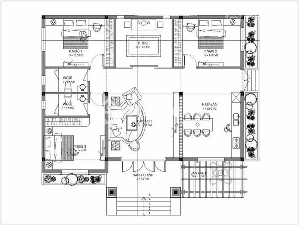
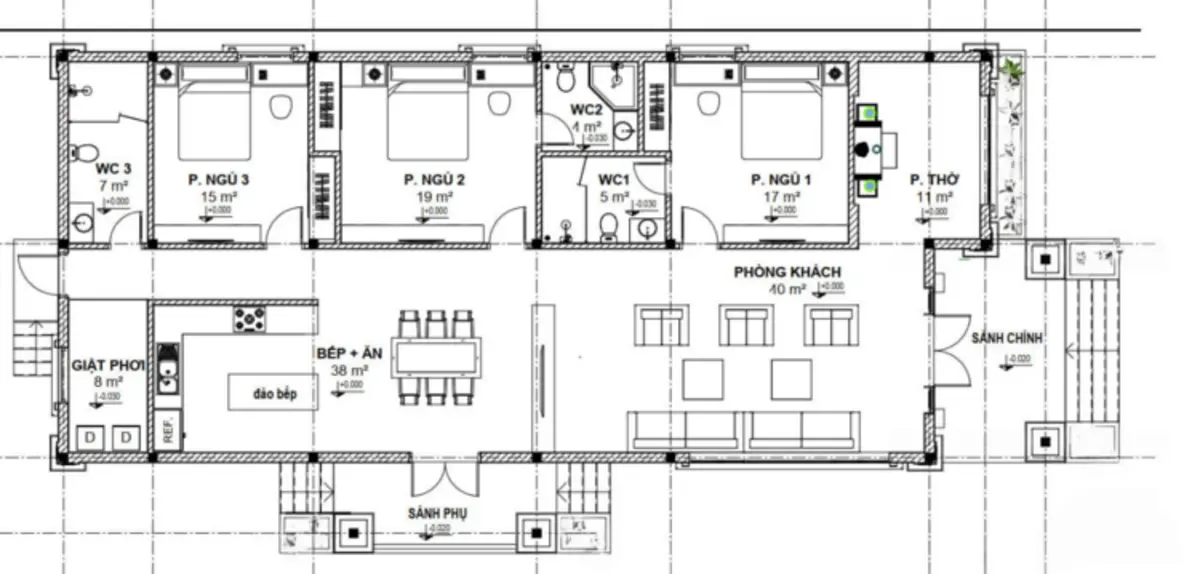
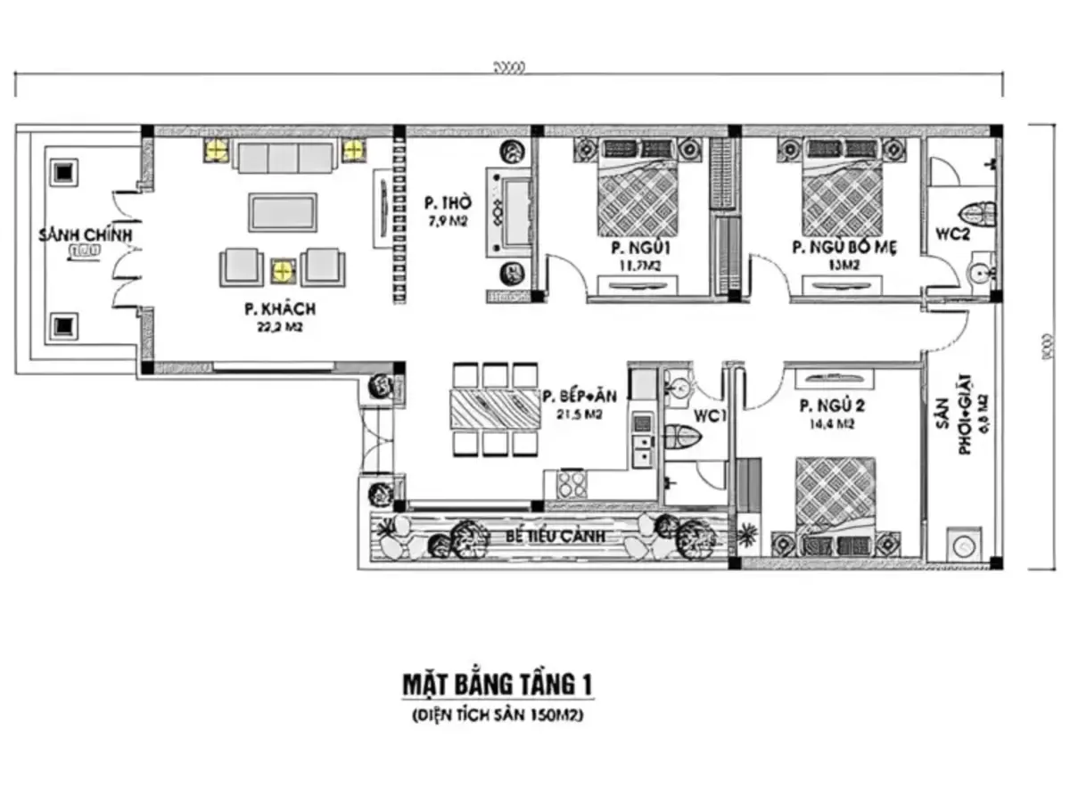
Mẫu nhà cấp 4 mái Nhật 150m² mang đến không gian sống thoải mái và tiện nghi cho gia đình đông thành viên hoặc nhiều thế hệ với 1 phòng khách lớn, 4 phòng ngủ, khu bếp kết hợp phòng ăn, phòng thờ riêng, 3 nhà vệ sinh cùng gara ô tô và khu sân vườn. Cách bố trí này không chỉ khoa học, đáp ứng đầy đủ công năng sử dụng mà còn nâng cao giá trị thẩm mỹ nhờ sự kết hợp hài hoà với sân vườn và tiểu cảnh.

Mẫu nhà cấp 4 mái Nhật 150m² không chỉ đáp ứng đầy đủ công năng sử dụng mà còn có tính thẩm mỹ cao, kết hợp hài hoà với sân vườn và tiểu cảnh (Nguồn ảnh: Internet)
Mẫu nhà cấp 4 mái Nhật có gác lửng phù hợp với những gia đình đông thành viên, muốn tăng diện tích sử dụng mà không cần mở rộng quỹ đất xây dựng. Tầng trệt gồm phòng khách, khu bếp kết hợp phòng ăn, 2 – 3 phòng ngủ và 1 – 2 nhà vệ sinh, trong khi gác lửng có thể dùng làm phòng ngủ, phòng thờ hoặc không gian sinh hoạt chung. Nhờ khả năng tối ưu không gian hiệu quả, mẫu nhà này giúp tiết kiệm chi phí hơn so với nhà hai tầng nhưng vẫn giữ trọn vẻ đẹp đặc trưng của kiến trúc mái Nhật.

Mẫu nhà cấp 4 mái Nhật có gác lửng phù hợp với những gia đình đông thành viên, muốn tăng diện tích sử dụng mà không cần mở rộng quỹ đất (Nguồn ảnh: Internet)
Mẫu nhà cấp 4 mái Nhật có gara ô tô bao gồm phòng khách, 3 – 4 phòng ngủ, khu bếp kết hợp phòng ăn, 2 – 3 nhà vệ sinh cùng gara ô tô liền khối. Cách bố trí này giúp tiết kiệm diện tích, tối ưu mặt bằng tổng thể và đặc biệt phù hợp với những lô đất rộng hoặc có mặt tiền thông thoáng.

Mẫu nhà cấp 4 mái Nhật có gara ô tô phù hợp với những lô đất rộng hoặc có mặt tiền thông thoáng (Nguồn ảnh: Internet)
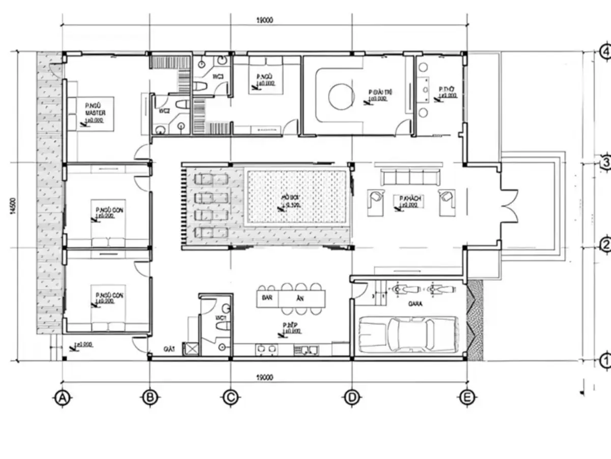
Mẫu nhà cấp 4 mái Nhật kết hợp sân vườn có tổng diện tích dao động từ 150 – 200m², phù hợp với gia đình yêu thiên nhiên, có quỹ đất tại khu vực ngoại thành hoặc nông thôn. Công năng thường bao gồm phòng khách, 4 phòng ngủ, khu bếp kết hợp phòng ăn, phòng thờ, 2 – 3 nhà vệ sinh cùng hiên nhà và khu sân vườn thoáng đãng. Việc kết hợp hài hòa giữa kiến trúc và cảnh quan tạo nên không gian thư giãn ngoài trời lý tưởng, đồng thời nâng cao tính thẩm mỹ và giá trị sống cho ngôi nhà.

Mẫu nhà cấp 4 mái Nhật kết hợp sân vườn phù hợp với gia đình yêu thiên nhiên, có quỹ đất tại khu vực ngoại thành hoặc nông thôn (Nguồn ảnh: Internet)
Mẫu nhà cấp 4 nông thôn mái Nhật chữ L thường có tổng diện tích từ 100 – 130m², phù hợp với những khu đất rộng ngang hoặc vuông. Công năng bao gồm phòng khách, 3 – 4 phòng ngủ, khu bếp kết hợp phòng ăn, 2 nhà vệ sinh và phần hiên chữ L rộng rãi có thể tận dụng làm gara hoặc sân chơi. Góc chữ L không chỉ giúp phân tách rõ ràng các khu vực sinh hoạt chung và riêng tư mà còn có thể được tận dụng cho sân vườn hoặc gara, giúp tăng tính thẩm mỹ và dễ hoá giải yếu tố phong thủy.

Góc chữ L không chỉ giúp phân tách rõ ràng các khu vực sinh hoạt chung và riêng tư mà còn có thể được tận dụng cho sân vườn hoặc gara (Nguồn ảnh: Internet)

Mẫu nhà cấp 4 nông thôn mái Nhật chữ L phù hợp với những khu đất rộng ngang hoặc vuông (Nguồn ảnh: Internet)
Mẫu nhà cấp 4 nông thôn mái Nhật kiểu vuông thường có tổng diện tích từ 100 – 120m², phù hợp với gia đình từ 3 – 5 người, sở hữu khu đất vuông vắn. Công năng được sắp xếp hợp lý với phòng khách, 3 phòng ngủ, khu bếp kết hợp phòng ăn, 2 nhà vệ sinh cùng sân trước và sân sau thoáng đãng. Nhờ hình khối đơn giản và cách bố trí khoa học, thiết kế này giúp tiết kiệm chi phí xây dựng, dễ thi công và thích hợp với nhiều loại đất khác nhau.

Mẫu nhà cấp 4 nông thôn mái Nhật kiểu vuông giúp tiết kiệm chi phí xây dựng, dễ thi công (Nguồn ảnh: Internet)
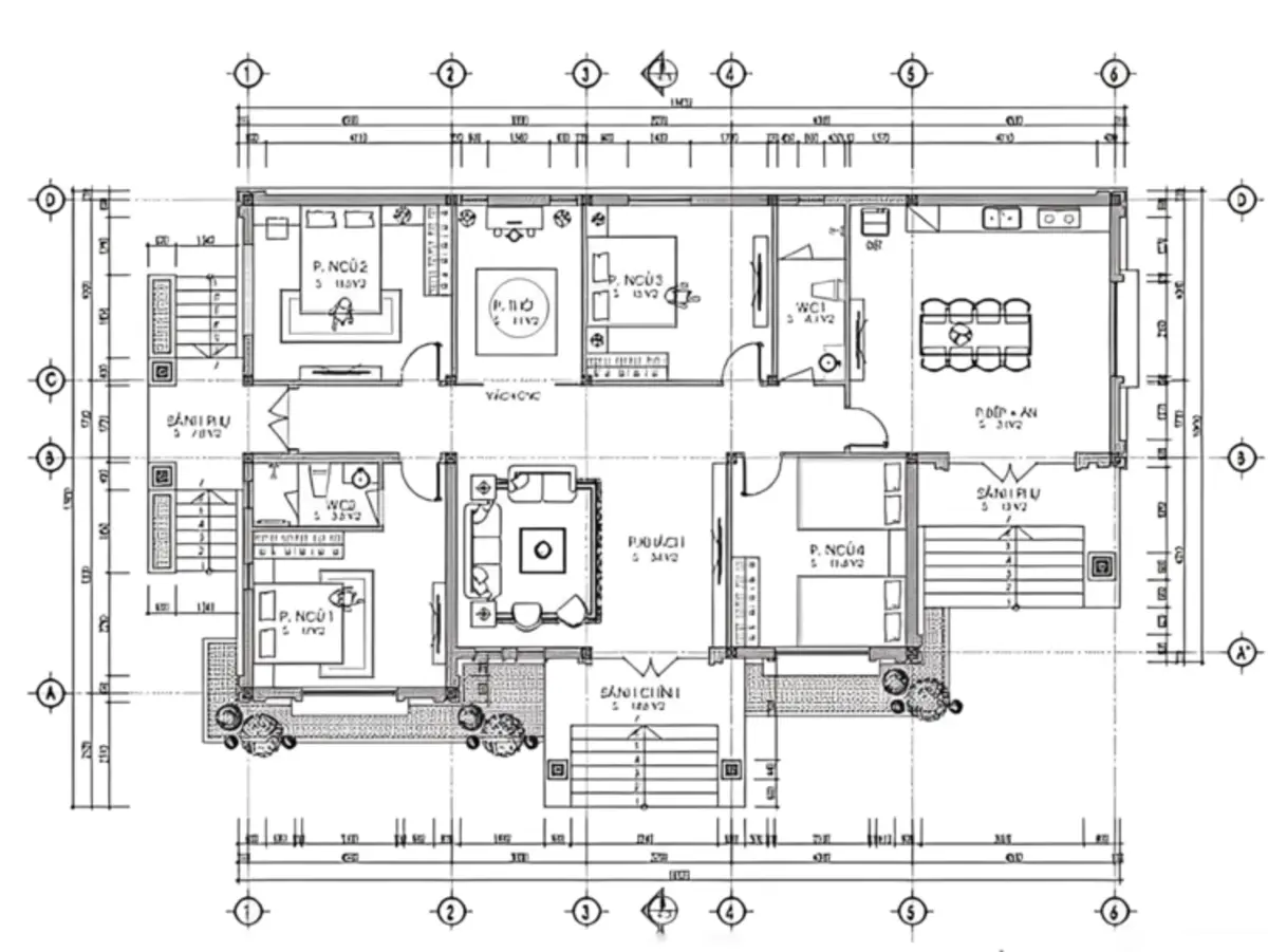
Các yếu tố cơ bản trong bản vẽ giúp người đọc nắm rõ thông tin, bố cục và quy mô công trình:

Các yếu tố cơ bản trong bản vẽ giúp người đọc nắm rõ thông tin, bố cục và quy mô công trình (Nguồn ảnh: Internet)
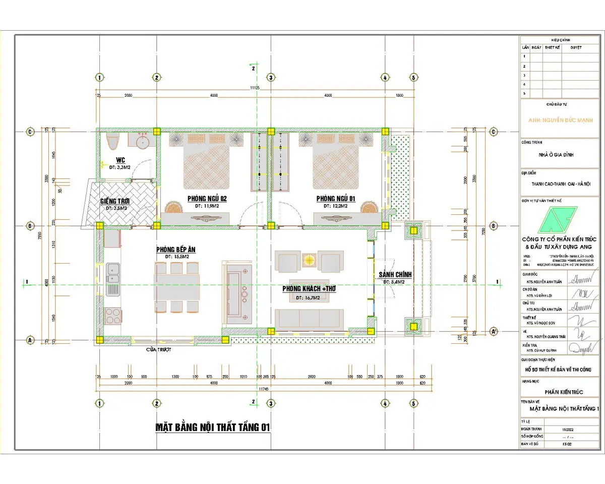
Các mặt vẽ chính trong bản vẽ nhà cấp 4 mái Nhật là phần thông tin quan trọng giúp gia chủ và đội thi công hình dung tổng thể công trình:

Các mặt vẽ chính trong bản vẽ nhà cấp 4 mái Nhật giúp gia chủ và đội thi công hình dung tổng thể công trình (Nguồn ảnh: Internet)
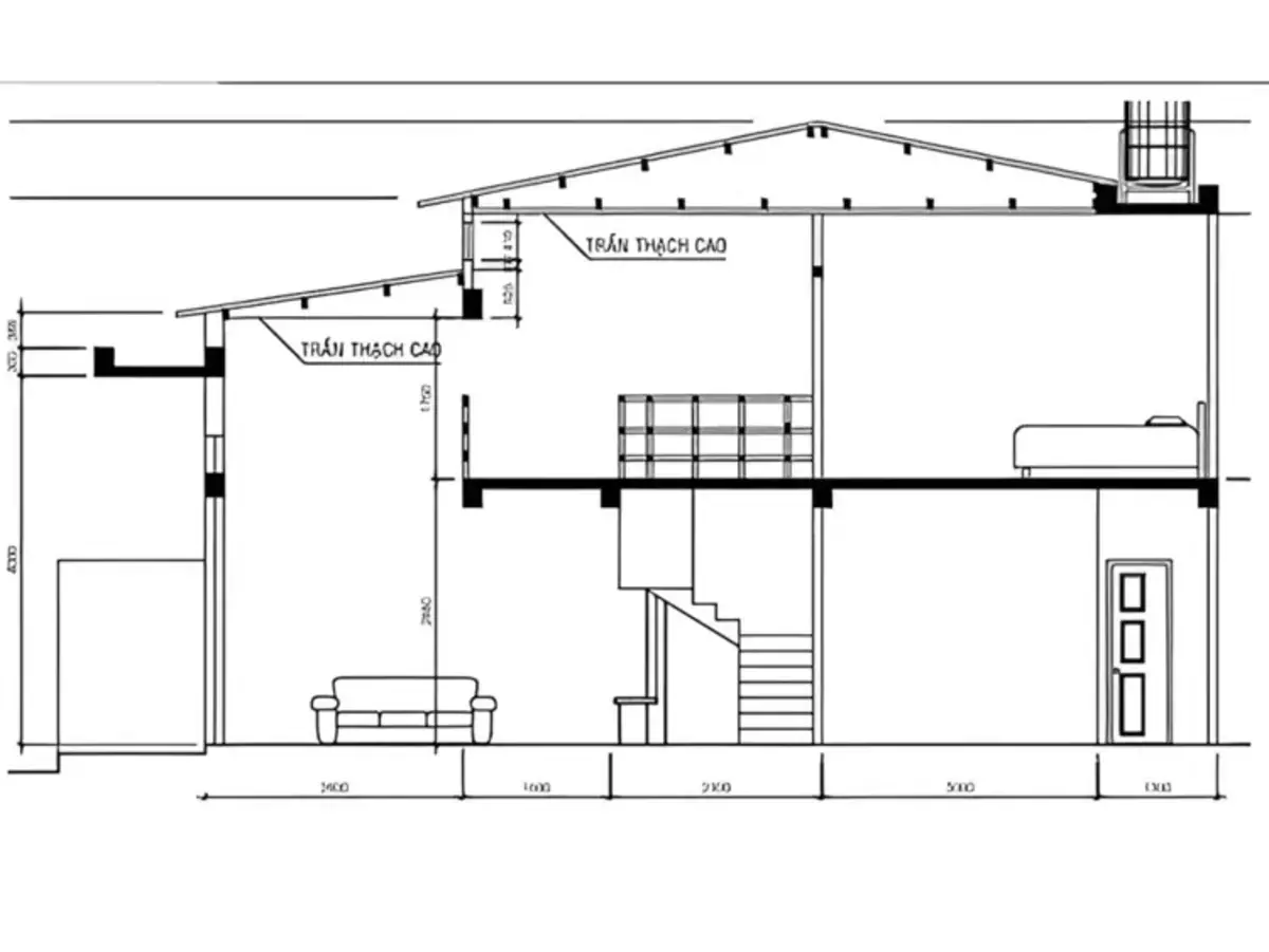
Các chi tiết kỹ thuật cung cấp thông tin cụ thể về vật liệu, kết cấu và hệ thống trong nhà, giúp đội ngũ thi công lựa chọn và thi công chuẩn xác:

Các chi tiết kỹ thuật cung cấp thông tin cụ thể về vật liệu, kết cấu và hệ thống trong nhà (Nguồn ảnh: Internet)
Trong giai đoạn thiết kế, gia chủ cần có ý tưởng rõ ràng để bố trí không gian một cách hợp lý:

Trong giai đoạn thiết kế, gia chủ cần có ý tưởng rõ ràng để bố trí không gian một cách hợp lý (Nguồn ảnh: Internet)
Bạn cần đọc bản vẽ đúng cách để hình dung được bố cục, công năng và kết cấu của ngôi nhà trước khi thi công:

Bạn cần hiểu vị trí các phòng, lối đi và khoảng sân, đồng thời quan sát cách bố trí mái Nhật để hình dung tổng thể công năng và kiến trúc công trình (Nguồn ảnh: Internet)
TOSTEM là thương hiệu cửa nhôm cao cấp thuộc Tập đoàn LIXIL Nhật Bản, nổi tiếng toàn cầu với các giải pháp cửa đi, cửa sổ, vách cố định,… có thiết kế tinh tế, khả năng vận hành êm ái và cách âm, cách nhiệt vượt trội. Cửa nhôm TOSTEM còn sở hữu độ kín khít cao, mang lại không gian sống an toàn, thoáng đãng và tiết kiệm năng lượng. Lựa chọn TOSTEM chính là đồng nghĩa với việc đầu tư vào sự bền bỉ, tiện ích và giá trị thẩm mỹ lâu dài cho công trình của bạn.
Cửa nhôm:
Ngoại thất cao cấp:

Lựa chọn TOSTEM đồng nghĩa với việc đầu tư vào sự bền bỉ, tiện ích và giá trị thẩm mỹ lâu dài cho ngôi nhà cấp 4 mái Nhật của bạn
Hy vọng các bản vẽ nhà cấp 4 mái Nhật trong bài viết sẽ giúp bạn hình dung được cách bố trí không gian khoa học, tối ưu công năng để hiện thực hóa ngôi nhà mơ ước. Nếu bạn cần được tư vấn giải pháp cửa nhôm cao cấp cho nhà cấp 4 mái Nhật, hãy liên hệ TOSTEM ngay thông qua các kênh liên lạc sau nhé.
Thông tin liên hệ
|
News
News
Tin liên quan